
Plans for the long-anticipated Robles Park redevelopment in Tampa are moving closer to construction, as permits for the project’s first phase have now been submitted to the city. Known as Lot D, the parcel will deliver the first new residential building within the 35-acre redevelopment area, representing a major step forward following the demolition of the public housing complex. The effort is being led by PMG Affordable in collaboration with the Tampa Housing Authority, building on a master plan that received city approval in 2024 after an extensive planning and public review process.
Demolition of the original Robles Park complex began in late 2025, clearing a site that once included 67 low-rise buildings constructed in the 1950s as part of a national urban renewal era. The redevelopment will replace one of Tampa’s oldest public housing communities with a modern, mixed-income neighborhood intended to increase residential density while preserving long-term affordability.


The full Robles Park redevelopment is estimated to carry a price tag of approximately $800 million and will be delivered in multiple phases over several years. Construction is currently targeted to begin in April 2026, following the completion of demolition work. The recent submission of permits for Lot D aligns with that timeline, with permits likely being expedited prior to groundbreaking.
Submitted on January 21st, 2026, the application represents a full building permit for new construction, covering structural work and core building systems such as plumbing and electrical. With this permit in place, the project can move forward without needing multiple smaller permits to begin construction. Construction will be led by Ducon, LLC as the general contractor, with Urban Atelier Group serving as construction manager.
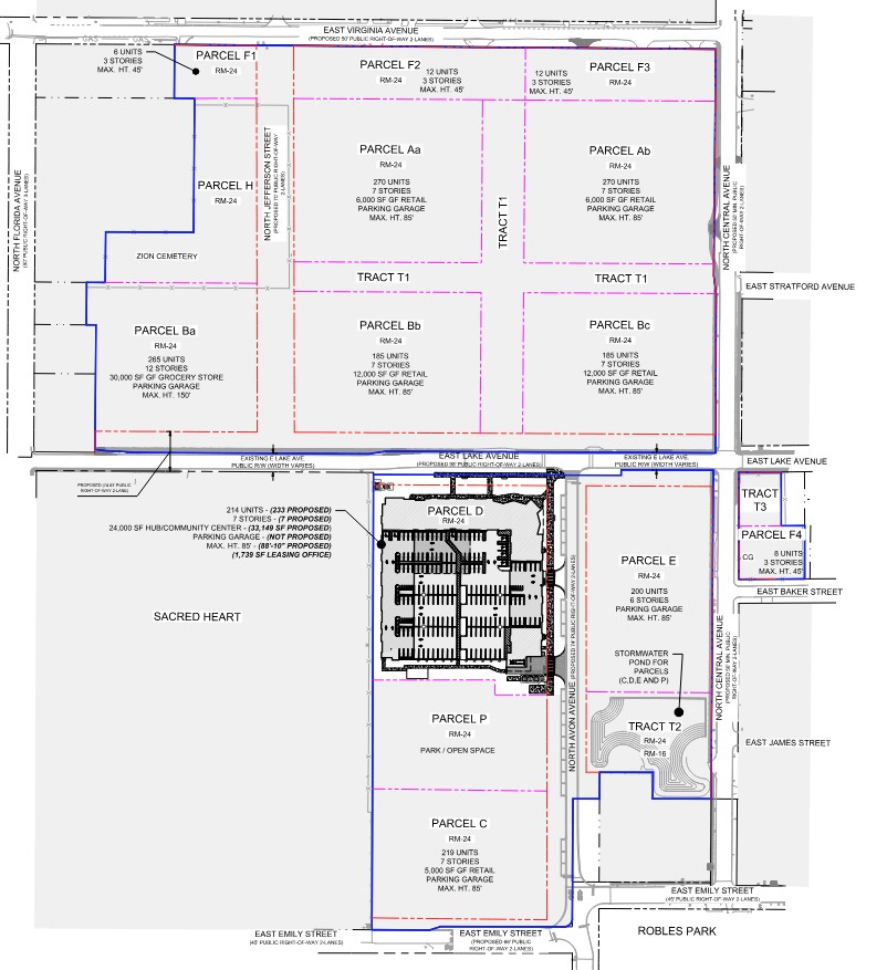
The proposed building will deliver 233 affordable housing units serving households earning between 30 percent and 80 percent of the area median income. Residents displaced by the original demolition of Robles Park will have a right of return and will not face rent increases should they choose to move back into the redevelopment.
Unit layouts will include one-, two-, three-, and four-bedroom residences, with sizes ranging from 571 SF at the low end to about 1,439 SF for the largest units. Two-bedroom units will make up the largest share of the overall unit mix.
According to a project description given by the developer, the building will include a plethora of residential amenities, including a pool deck on the second level. In addition to the pool, the development will feature approximately 10,000 SF of interior amenity space, along with a nearly 2,000 SF leasing office for residents. A 32,486 SF community center is also planned for the second floor, intended to serve the new community.

To accommodate parking needs for both residents and the on-site community center, the development will provide 210 parking spaces. This total is made possible through an approved parking reduction waiver. All parking will be located at ground level as a surface lot.
The building is designed by Orlando-based Baker Barrios Architects, the firm behind the broader Robles Park master plan. Architectural elevations show the structure rising seven stories, or approximately 83 FT to its highest point. The exterior employs a contemporary palette of gray and white tones, combining stucco and metal finishes in a style consistent with other recent Baker Barrios projects.

Before demolition, the original Robles Park community consisted of 432 residential units and a 3,036 SF daycare facility. The approved redevelopment envisions a far larger and more comprehensive development, ultimately delivering 1,098 affordable housing units, 160 affordable senior residences, 550 multifamily units, and 42 single-family homes. In addition, the plan includes approximately 41,000 SF of retail space, a 32,486 SF community center, and a new 30,000 SF supermarket, significantly expanding both housing capacity and neighborhood-serving amenities.

1 Comment
We are introducing LRG General Contracting Services, Inc., a licensed full-service General Contractor serving Hillsborough County and the greater Tampa Bay area.
We are reaching out regarding the Robles Park / RPV Parcel D multifamily development activity in Tampa. We understand these projects are advancing through active bond financing for new multifamily construction, and we would welcome the opportunity to connect with the appropriate owner or development representative regarding future site and vertical construction support.
LRG General Contracting Services, Inc. is prepared to assist with large-scale multifamily construction and related project execution as these developments move forward.
Sincerely,
Luciano Gonzalez
President
LRG General Contracting Services, Inc.
(727) 563 6368
info@lrgcontractor.com
http://www.lrgcontractor.com
—