
A long-anticipated affordable housing project in Miami’s Omni District is set to officially break ground, following a joint announcement by the developer and the City of Miami. Known as UniDos (also branded as Uni + Dos), the tower is planned for 1445 N Miami Avenue and represents the district’s latest addition to its growing affordable housing inventory. Spearheaded by NR Investments, UniDos follows the recent completion of Uni Tower, a 252-unit affordable housing project that marked the firm’s earlier investment in the neighborhood.
A ceremonial groundbreaking is scheduled for February 24th at 10:00 a.m., marking one of several milestones required before the tower can begin vertical construction. Recently elected Mayor Eileen Higgins is expected to attend the event, following a campaign where she placed a strong emphasis on expanding affordable housing development across the city.
The development site is the result of a multi-year assemblage of nine properties, acquired between 2014 and 2016 for a combined price of just under $9 million. Transactions involved both private property owners and the Omni Redevelopment District Community. Today, the parcel is largely cleared, with only limited landscaping and a surface parking area remaining.


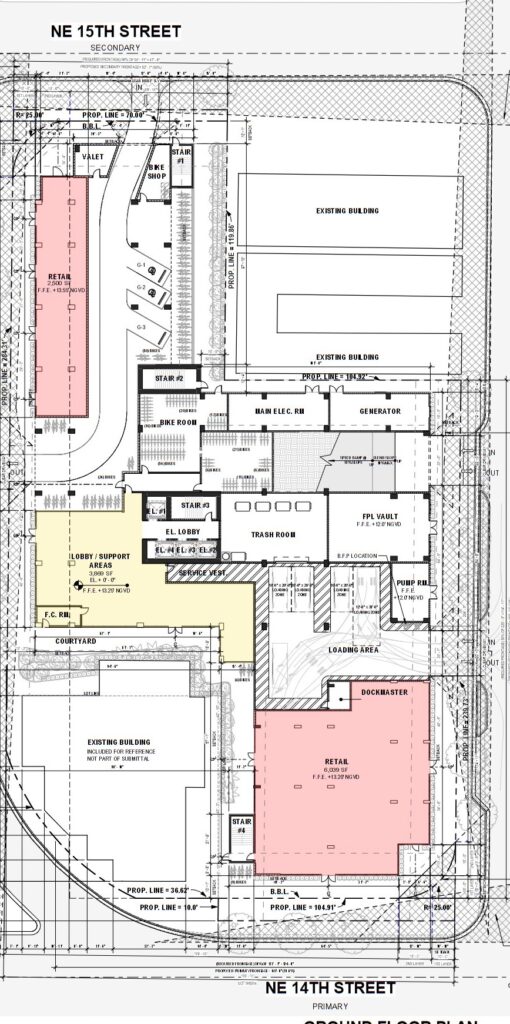
UniDos is planned to deliver 398 income- and rent-restricted affordable and workforce housing units. Earlier plans submitted to the city outlined a unit mix consisting of micro-units, one-bedroom, and two-bedroom residences. According to a construction permit filed last year and still under review, the residential portion of the project will add 406,694 SF of new construction, spanning from levels 8 through 31 of the tower.
Residents will have access to a dedicated amenity level on the eighth floor, which will include a swimming pool, outdoor lounge areas, and roughly 14,000 SF of indoor amenity space. The project is also planned to accommodate 451 parking spaces, a supply intended to meet anticipated resident demand.
At street level, the building adopts a distinctive footprint, forming an S-shaped profile in response to the presence of historic structures along the block. In addition to widened sidewalks and pedestrian improvements, the ground floor will incorporate 8,539 SF of retail space, contributing to street-level activation in the area.


Designed by Corwil Architects, the tower will feature a contemporary facade defined by gray balconies and a palette of white and gray tones. The podium will incorporate ventilated mesh elements alongside patterned panels intended to mimic greenery. Once complete, the building is expected to rise approximately 321 FT.
While vertical construction is not imminent, as site clearing and additional permitting remain outstanding, a general contractor has already been selected. First Florida is listed as the contractor for the project, and despite remaining pre-construction steps, vertical construction is still anticipated to begin by the end of the year. When it does, UniDos will become the second tower under construction in Miami’s Omni District, following the start of vertical work at Excel Miami.