
A new private residential tower is on the way in North Miami: Shelton Miami. Planned for 1998 NE 135th Street along Little Arch Creek, the 11-story building will feature 18 residential units. Spearheaded by Shelton, a Turkey-based company with completed projects in both Bodrum and Ankara, the firm’s venture in Miami will be the first project outside of Turkey. The Planning Commission of North Miami will review and offer changes for the project on September 18th; however, it’s just one step for the company as final approval lies in the hands of City Council.

The project’s 18 planned units will be luxury-oriented, featuring two five-bedroom residences per floor from levels 3 through 11. Each unit will average around 3,000 SF, placing them on the larger end for Miami’s metropolitan market. Because the development exceeds the lot’s allowable density of 8.8 units (or 25 units per acre), the developer is requesting a Conditional Use Permit to allocate nine additional units from the city’s density pool.
According to the developer’s website, “Shelton Miami offers the ultimate in seaside living. With its private pier and boat services, it provides an experience akin to a yacht club. In a region like Miami, where supply is low and demand is high, these limited-edition residences promise an exclusive lifestyle. Shelton Miami is not just a living space but also a high-yield investment opportunity.” Beyond its boating amenities, plans for the project also include a swimming pool, sauna, steam room, gym, and more.
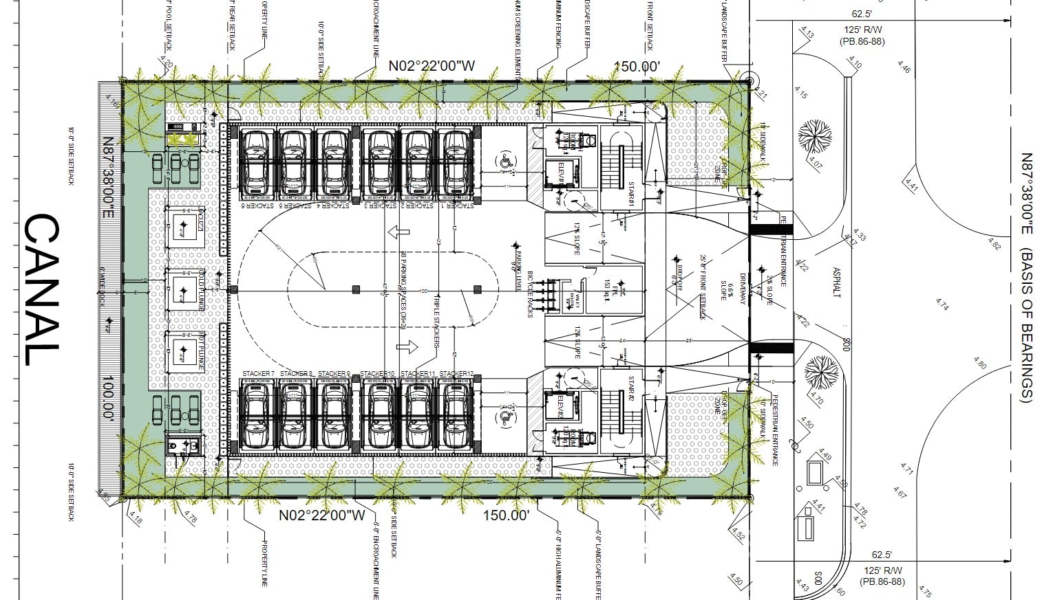
The ground floor will offer 38 parking spots in a tight layout. By using mechanical parking lifts instead of traditional spaces, each unit is granted more than one parking spot. This approach also reduces the need for a parking ramp, freeing up level 2 for a lobby, amenity space, and other uses. Mechanical lift parking is becoming increasingly common in the Miami region.

Designed by Kobi Karp Architects, the building will rise 11 floors to a height of 121 FT. Its facade will feature pure white stucco, frameless glass railings, expansive glazing, wood paneling, and fluted stone accents.

If constructed, Shelton Miami would join North Miami’s growing market for both market-rate and luxury housing. Multiple developers have already capitalized on the region’s demand. According to Floridian Development’s database (Floridian Advanced), around 30 residential projects at or taller than five stories are either under construction or proposed in the area.