
A student housing proposal near the University of Miami that has drawn years of debate is moving again through the approval process, following a recent filing by Landmark Properties with Miami-Dade County. Planned for 1250 S. Dixie Highway in Coral Gables, the project calls for an eight-story student housing project located just steps from the University Metrorail Station. Designed by Behar Font Architecture, the development would mark Landmark’s second student housing project in the city if constructed. The latest submission, filed in mid-January, reopens long-running discussions surrounding allowable height, density, and zoning authority in the area.
The proposal was first introduced in 2023 as a two-building concept on a 3.17-acre site, currently occupied by a mid-century shopping center and surface parking. Early versions were reviewed locally by Coral Gables’ Development Review Committee, but stalled amid growing concerns over the project’s scale.
As city-level approval became increasingly uncertain, the development team shifted its attention for approval under Miami-Dade County’s Rapid Transit Zone. The designation, which was granted last year, transferred planning and zoning authority to the county, opening the door to higher-density development adjacent to major transit infrastructure, effectively pushing the project beyond the hands of Coral Gables politicians.
In response, Coral Gables later pursued its own University Station transit overlay in an effort to retain local design review and architectural control along the corridor. However, by that point, the project had already transitioned into the county approval process, significantly limiting the city’s ability to directly influence the proposal’s scope or configuration.


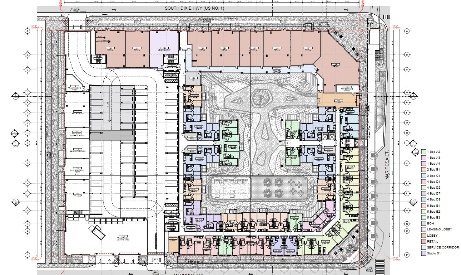
While the proposal has now been formally submitted under Miami-Dade County jurisdiction, the project’s overall density remains unchanged: a silver lining for some concerned residents. Plans first outlined in 2024 called for a total of 393 residential units, a figure that has been carried forward into the current submission. The unit mix will range from studios to five-bedroom residences, with four-bedroom units representing the most common configuration.
Residents would have access to a comprehensive amenity program, including a pool deck with outdoor seating and lounge areas, covered terraces, a wellness suite, study lounges, a fitness room, and a centrally located courtyard. The project also proposes 680 parking spaces, despite county code allowing zero required parking for transit-oriented developments. In addition to serving student residents, the parking supply is intended to support eight ground-floor retail spaces totaling 14,960 SF.

At street level, the development would introduce widened sidewalks, updated landscaping, and a vehicular entrance to the parking garage accessed from Madruga Avenue, a nearby residential street where most site-related traffic would be directed.
One of the more notable changes tied to the county submission involves both the building’s form and height. The project has shifted from a two-building layout to a single, more unified massing. At the same time, the height has increased modestly, rising from the previously proposed eight stories (or 97 FT) to nine stories (102 FT) at its tallest point.

Architecturally, the updated design adopts a contemporary palette of whites and light grays, incorporating stucco finishes, score lines, metal balconies, impact-resistant glazing, and trellis elements. The revised approach is a byproduct of the county’s design playbook, which places fewer constraints on setbacks and architectural style than Coral Gables’ code, allowing the project to move away from Mediterranean design requirements and toward a more modern proposal.
While the project may be controversial, especially over its visual impact, there is little the city can do. That concern was raised months ago during public discussions, when Vice Mayor Rhonda Anderson warned that prolonged delays would push developers to seek county oversight instead. At the time, she warned that doing so would likely result in larger projects with fewer setbacks, weaker design controls, and diminished opportunities for resident input. With the proposal now firmly under Miami-Dade County’s jurisdiction, that scenario has effectively played out.
Plans were submitted only yesterday (January 21st), meaning the approval process is still in its early stages and further design revisions remain possible. According to sources, the property is currently under contract but has not yet changed hands. The most recent recorded sale of the site occurred in 2015, when it sold for approximately $4.2 million.