
The Related Group has secured key financing for The Gallery at Wagner Creek, a mixed-income high-rise planned for Miami’s Health District that will include affordable housing. The project marks the first phase of a larger multi-tower development that will eventually involve the demolition and redevelopment of the nearby Jackson Medical Towers. Envisioned as a transit-oriented, mixed-income community, the development is located at 1165 NW 11th Street: just steps from the UHealth-Jackson Metrorail Station.




On October 29th, Miami’s Housing and Commercial Loan Committee approved the allocation of $4,848,080 in Miami Forever Bonds to The Related Group. Miami Forever Bonds are part of a measure approved by voters to fund essential infrastructure, resiliency, and affordable housing projects. The $4,848,080 loan for the Gallery at Wagner Creek development is a key part of the project’s more than $190 million cost. Other sources of financing, including from the state, have also been awarded.
The Gallery at Wagner Creek required financing from multiple institutions due to its large scale of affordable housing; the project will include 460 residential units, with 184 designated as either workforce or affordable housing for at least 30 years. These units will be priced for households earning between 30% and 120% of the area’s median income (AMI). Of the deeply affordable units, 70 will receive city assistance, including 35 specifically reserved for special-needs households in need of stable housing.

This 40% workforce and affordable housing requirement stems entirely from the developer submitting the project under Florida’s Live Local Act. To avoid lengthy public hearings, the developer filed an administrative application, allowing the proposal to be reviewed solely by county officials. The Live Local designation also grants the developer greater flexibility, including increased height, density, and reduced procedural hurdles.
A representative of the developer writes, ‘Pursuant to the Live Local Act, a maximum density of 250 units per acre is permitted. According to the revised survey, the gross acreage of the North Site is 1.98 acres permitting a maximum density of 495 dwelling units. For this first phase, the Applicant is proposing 460 units on the North Site, providing much needed affordable housing stock to the area’.
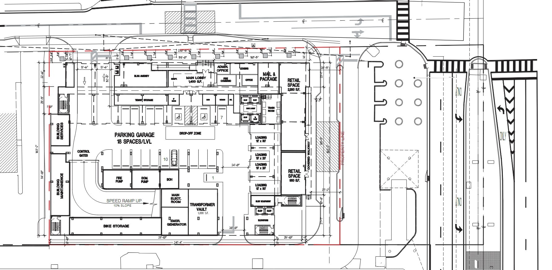
According to floor plans provided by the architect, Cohen Freedman Encinosa & Associates, units will range from studios, 1-bedroom, and 2-bedroom units. Residents will have access to a range of amenities, including a pool, lounging space, a health club, co-working space, and much more. The development is also set to feature 346 parking spaces and 3,200 SF of ground floor commercial space. When the development was first submitted, parking counts were slightly higher.


Elevations show a 27-story tower rising 305 FT, featuring materials such as smooth stucco, picketed railings, and louvered cladding. The building’s height is limited by nearby flight paths, with a maximum allowable elevation of 310 FT in this zone. To comply with aviation safety regulations, the roof will also include aircraft warning lights.

While the project is still moving through approvals, it has already cleared several key steps. The site, currently used as a surface parking lot, has been granted site control through a ground lease, giving the developer long-term rights to design, finance, and operate the building without full ownership of the land. Construction is expected to begin in late 2026, with completion targeted for 2028.