
Plans have been submitted to Miami’s Urban Development Review Board for a high-rise on one of West Brickell’s last undeveloped parcels. Located at 250 SW 7th Street, the proposal would redevelop the one-acre site into one of the highest-density residential towers in the city. Led by Rockville Hospitality and designed by Miami-based Behar Font & Partners, the project would mark one of the first Live Local Act developments in West Brickell or Brickell for that matter.
Rockville acquired the two parcels comprising the site for a combined $15.5 million in early 2015. The current 42-story proposal represents the latest phase of a multi-year development process that began with a 24-story concept, later to 29 stories, and has now advanced to its tallest iteration.



Plans submitted earlier this week, and scheduled for review by the UDRB on December 17th, showcase a tower containing 1,030 residential units. A density of this scale is only feasible under the Live Local Act, which permits any project within the City of Miami boundaries to utilize the maximum allowable residential density. In Miami, that limit is a staggering 1,000 dwelling units per acre, enabling 1,030 units on this site and any site in the city.
The developer plans to approach the maximum allowable density on the one acre site by utilizing compact floorplans, with units ranging from microunits (ranging between 275 and 400 SF) to studios, one-bedroom, and two-bedroom residences. Because microunits fall below the minimum unit-size requirements under the zoning code, the developer is seeking a warrant to permit 599 microunits. Microunits are only available within transit-oriented areas, where high-capacity transit can support smaller units.
However, developments pushing the boundary on density are becoming increasingly prevalent under the Live Local Act, with Floridian Development recently reporting on a similar high-rise proposal in Overtown employing the same strategy.
Because the Live Local Act requires qualifying developments to dedicate at least 40% of space to residential uses, the project is designed to be 78.8% residential. In addition, 40% of the units (or 405 residences) will be designated as affordable housing priced at 120% of the Area Median Income, on par with regulations set by the Live Local Act.
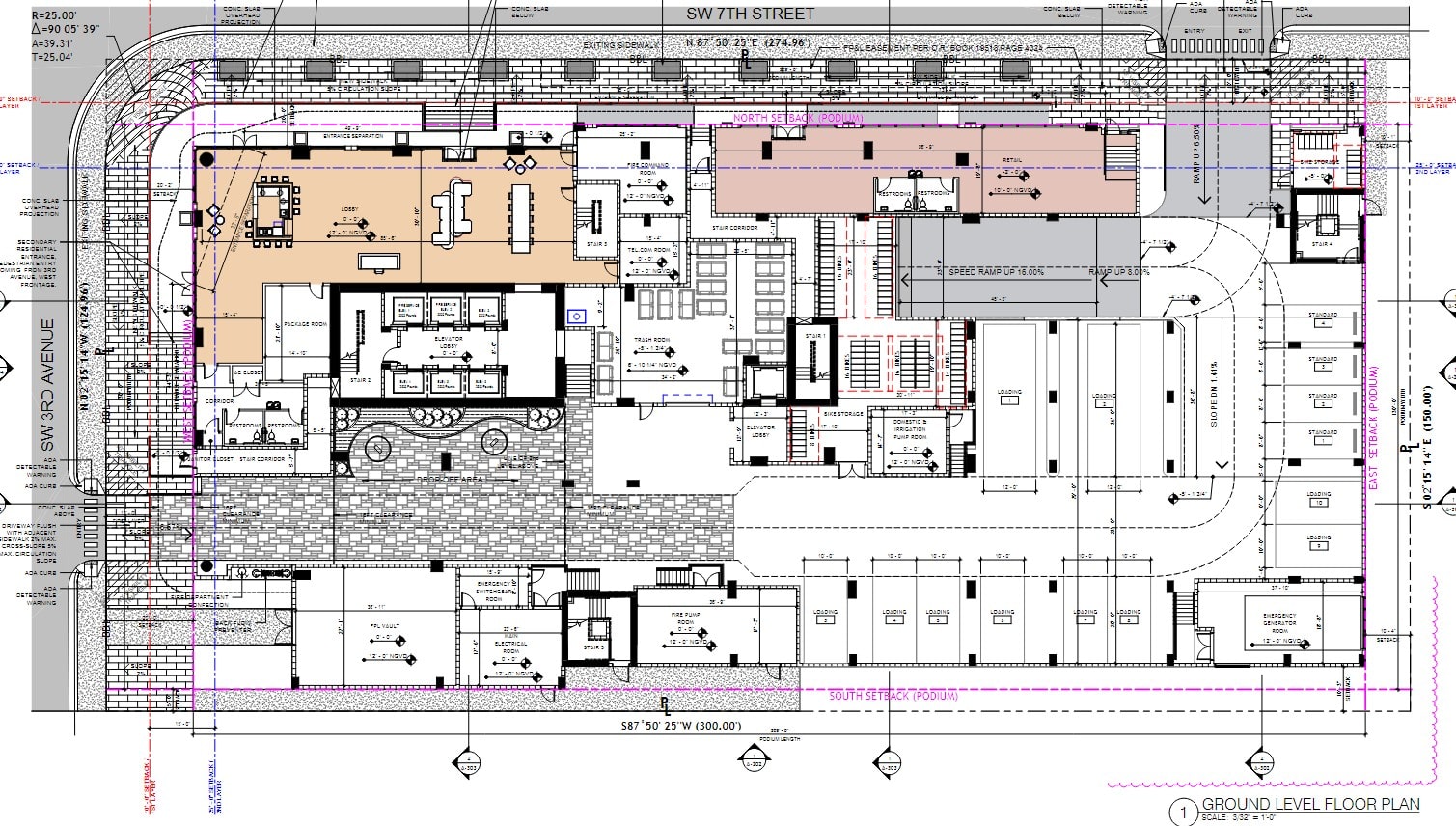
On level 9, residents will have access to a full floor of amenities, including lounges, a gym, a yoga room, a movie room, a game room, a club room, a swimming pool, and more. The tower’s parking podium will provide 269 spaces, 260 of which are reserved for residents and 9 for retail patrons. Given the 1,030 units on-site, the development will also include 1,017 bike racks for residents in lieu of additional parking. This reduction in parking is permitted only because the project is located within a transit-oriented area, which allows projects to waive standard parking requirements. All parking will be screened from public view, with residential units masking the podium.

The ground floor of the development will include widened sidewalks with greenery (significantly improving the current pedestrian realm) along with a residential lobby, a retail space fronting SW 7th Street, and a drop-off area. The retail component will total 2,980 SF.


Rising 42 floors, or 436 FT, the development’s height is enabled under the Live Local Act, which permits increased building heights within one mile of qualifying commercial or industrial parcels. A nearby site zoned for 48 stories by right supports this height, though the developer has chosen to utilize only 42 floors.

As the developer awaits a decision from the Urban Development Review Board, it’s important to note that UDRB approval is not final, ultimate approval rests with other regulatory bodies. If approved, the project is ready to proceed with permitting, as the site has already been fully cleared.
1 Comment
Glad to see W. Brickell about to get a decent size building. Speaking of West Brickell can you tell us the status of Mercedes Benz Places? Thanks