
On a narrow stretch of land along Collins Avenue in Miami Beach, a 15-story residential tower is advancing through the city’s approval process, marking one of the city’s first Live Local projects to inch closer to groundbreaking.
The project, planned for 1826 Collins Avenue and led by Lefferts, a close affiliate of Russell Galbut’s Crescent Heights, is among a growing number of developments shaped by Florida’s Live Local Act, a sweeping housing law that is reordering how projects are reviewed and approved across the state. In Miami Beach, where development has long been subject to intense public scrutiny, the shift is particularly pronounced.
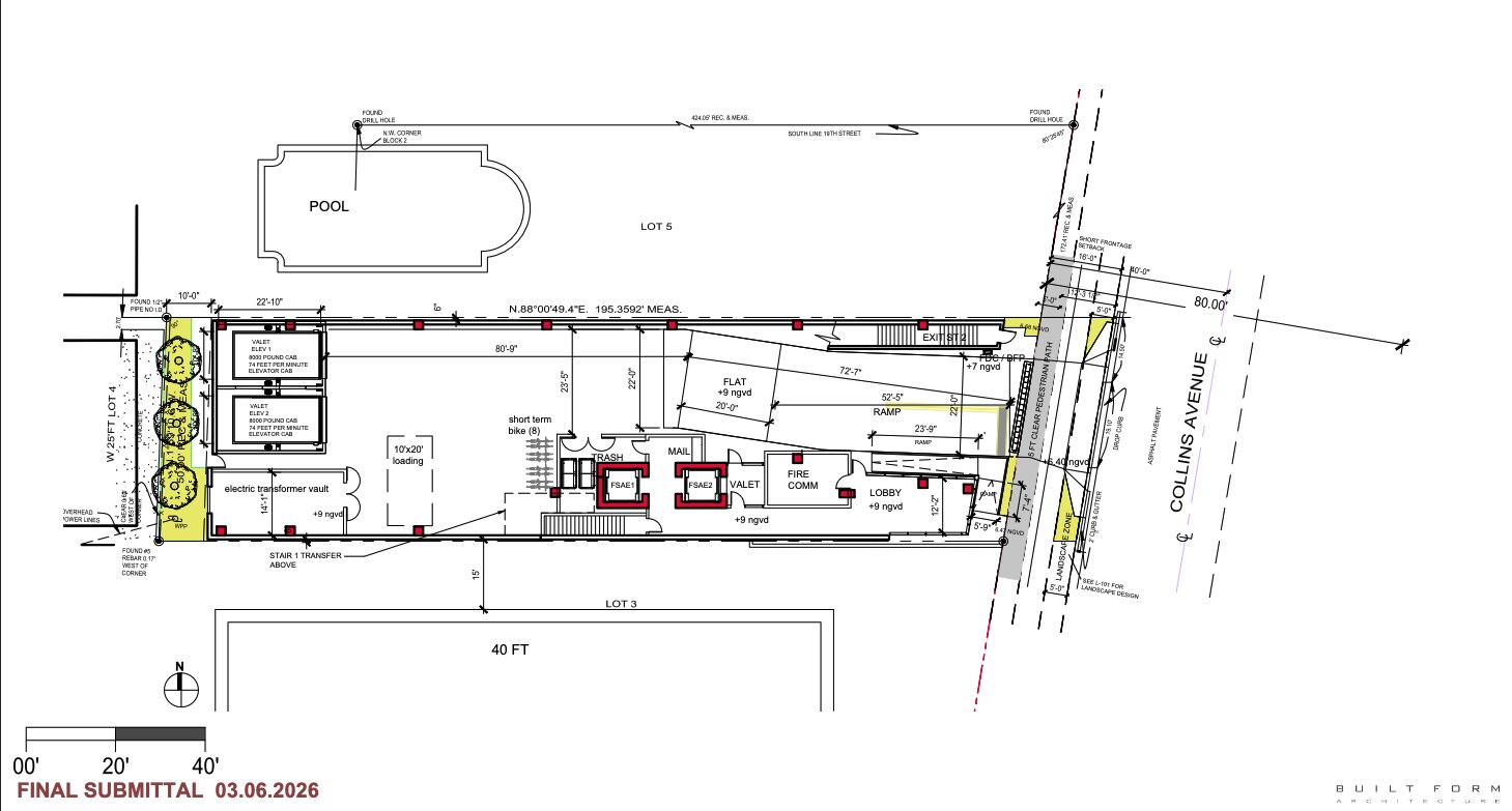
Later this spring, the proposal will appear before the city’s Planning Board. But the hearing will not center on the building itself. Instead, board members will consider a more mundane question: whether to grant a conditional use permit for a mechanical car elevator that will be used to store and retrieve vehicles on the property.
That distinction is key. Under the Live Local Act, projects that meet certain affordability thresholds can move forward administratively (without the public hearings that often define development battles in cities like Miami Beach). In this case, the tower is already proceeding internally. The Planning Board’s role is limited to the parking system, not the viability of the project as a whole.


First reported by Floridian Development in August 2025, the development has taken shape as a glass-clad tower designed by Built Form Architecture. A formal application dated March 6th, 2026 outlines a mixed-use building with 29 residential units, exactly 3,500 square feet of office space, and 35 parking spaces, slightly fewer than the 37 originally proposed. The project is scheduled to go before the board on May 5th.
Like other Live Local projects, it incorporates a significant share of below-market housing. 40% of the units, or 12 apartments, will be reserved for households earning up to 120% of the area median income. Those units are expected to be compact, ranging from roughly 400 to 475 square feet. The remaining apartments will be sold at market rates, including one-bedroom units with dens and a two-bedroom penthouse.
The constraints of the site have shaped much of the building’s design. The parcel measures just over 9,500 square feet, leaving little room for a conventional parking structure. Rather than building a multi-level garage, the developer is proposing a system in which cars are moved by elevator and stored out of view, operated exclusively by a valet.

Supporters of the approach say it allows the building to meet parking requirements without sacrificing design quality. A traditional garage, particularly on a site this small, would likely dominate the structure’s lower floors and require additional concrete. By contrast, the elevator system concentrates parking into a smaller footprint and preserves the building’s exterior aesthetics.
Plans indicate the tower will rise to 241 FT, measured to the top of the elevator core. Each unit will include a balcony, and residents will have access to a rooftop pool above the 15th floor.

For city officials, the upcoming vote is procedural. For developers and housing advocates, it is something more. In Miami Beach, where development proposals have often drawn vocal opposition, that change is already becoming visible. At 1826 Collins Avenue, the approval of the project as a whole is no longer up for debate. What remains is more of a technical, required process.
This is not the only Live Local Act project pursued by the developer and its affiliates, nor by other groups, with nearly a dozen such proposals having emerged across the city so far.