
Florida’s Live Local Act continues to reshape South Florida’s development landscape, with yet another project emerging in a relatively underdeveloped corridor. 306 WW LLC and The Mimosa Group, operating under the Cobas Family, have filed plans for NOMI 7|90, a 19-story multifamily development along NW 7th Avenue in Miami-Dade. The project is pursuing height and density bonuses through the Live Local Act and Miami-Dade County’s Workforce Housing Development program, mechanisms that allow the development to substantially exceed what conventional zoning would permit on the site.
The development site is located at 9001 NW 7th Avenue and 663 NW 90th Street, consisting of a 2.9-acre assemblage across two parcels. The Cobas Family acquired the first parcel in 2015 for $650,000 and the second in 2021 for $2.02 million. The site has remained largely undeveloped until now, with the land assembly representing a six-year accumulation strategy by the developers.
The widespread adoption of Live Local projects across Florida demonstrates the program’s growing effectiveness as a tool for developers targeting corridors that have historically lacked high-density construction. Designed by Red Octopus Architecture, NOMI 7|90 will represent the first completed highrise in the area, despite The Emblem Tower’s earlier attempt at a similar 139-unit development that appears stalled for now.

Plans submitted to the county outline a mixed-income 480-unit community. The project includes 192 units priced at 120% of the Area Median Income, 60 units through Miami-Dade’s Workforce Housing Development program priced at 140% AMI, and 228 market-rate units.
The income-restricted allocations reflect requirements tied to two separate programs. The State’s Live Local Act mandates that at least 40% of units be priced at or below 120% AMI, while Miami-Dade’s Workforce Housing Development program offers incentives for developments that include units priced at 140% AMI or below. By satisfying both program thresholds, NOMI 7|90 can stack both the height and density bonuses each provides.
While still preliminary, the unit mix includes studios, one-bedroom, and two-bedroom apartments. Amenity spaces are distributed throughout the building, with a fifth-floor deck featuring a pool, outdoor seating, landscaping, and terrace areas, while a lower level includes a business center, fitness center, playroom, and meditation room.
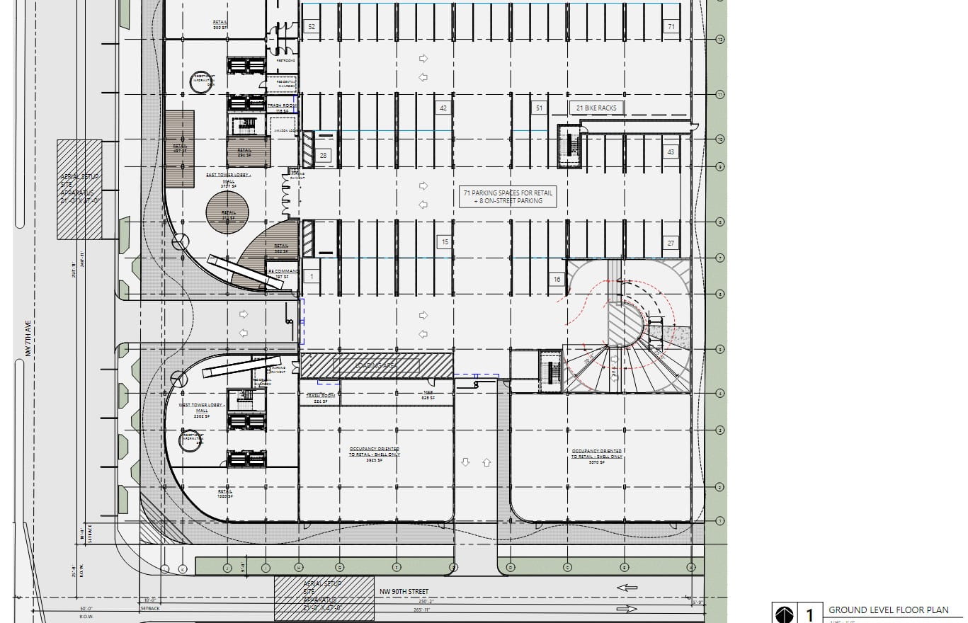
The development will provide 553 parking spaces in the podium, equating to at least one space per unit. However, the project qualifies for substantial parking reductions under both the Live Local Act, which permits a 100% reduction, and Miami-Dade’s Workforce Housing program, which allows a 25% reduction. These incentives effectively reduce the parking requirement well below what would otherwise be mandated.
In addition, retail space extends across three levels of the podium, with the ground floor encompassing 12,158 SF alone. The development also incorporates expanded landscaping throughout the site and widened sidewalks finished with pavers.


The tower will rise 19 stories to approximately 223 FT at its highest point. Under conventional zoning, the site would be limited to 12 stories; however, the Live Local Act permits 13 stories within a one-mile radius, and Miami-Dade’s Workforce Housing program provides an additional six-story bonus, bringing the total to 19 stories. Designed by Red Octopus Architecture, the building features an active ground floor wrapped in glass with curved forms, while the upper volumes maintain a more rectangular profile complemented by curved balconies.

According to recent site photography, the parcels remain undeveloped with existing structures still standing. Should the developer proceed with construction rather than pursue alternative strategies such as selling the development rights, both on-site buildings will require demolition. Given that neither structure exceeds one story, removal will be relatively straightforward.