
Plans for a new luxury high-rise along Miami Beach’s West Avenue waterfront are moving forward, as developers work to clear the remaining regulatory hurdles for a redevelopment that would replace one of the neighborhood’s aging condominium buildings.
The proposal, located at 1250 West Avenue, is scheduled to be reviewed by Miami-Dade County’s Shoreline Development Review Committee, marking another milestone for a project that has already secured key zoning approvals from the City of Miami Beach. Those approvals were granted under the Alton Beach Bayfront Overlay, clearing the way for a tower significantly taller than what was previously permitted on the site.

As part of the deal with the city, the development will include less than half of the density previously permitted on-site, a significant concession in exchange for the height increase. The partnership is also obligated to design and fund new Baywalk segments out of pocket across four properties: 1250 West Avenue, 1228 West Avenue, 800 West Avenue, and 1450 Lincoln Road. Should the team be unable to fulfill those obligations directly, they are required to pay the city in lieu to complete the segments in their place.
Beyond the waterfront commitments, the developers separately agreed to acquire the Bikini Hostel at 1247 West Avenue, with plans to demolish the property and replace it with a public park. The hostel currently serves portions of Miami Beach’s unhoused population, meaning the redevelopment will also require a plan for relocating those residents.
The redevelopment is being pursued by a partnership between Terra Group, JDS Development Group, GV Development, and RG Development. Together, the group assembled the site through a rare and complex condominium buyout of Bay Garden Manor, a 15-story residential building constructed in 1964. The developers acquired more than 95% of the building’s 238 units from over 100 individual owners, where they will move to terminate the condominium association: a necessary legal step before demolition can proceed.


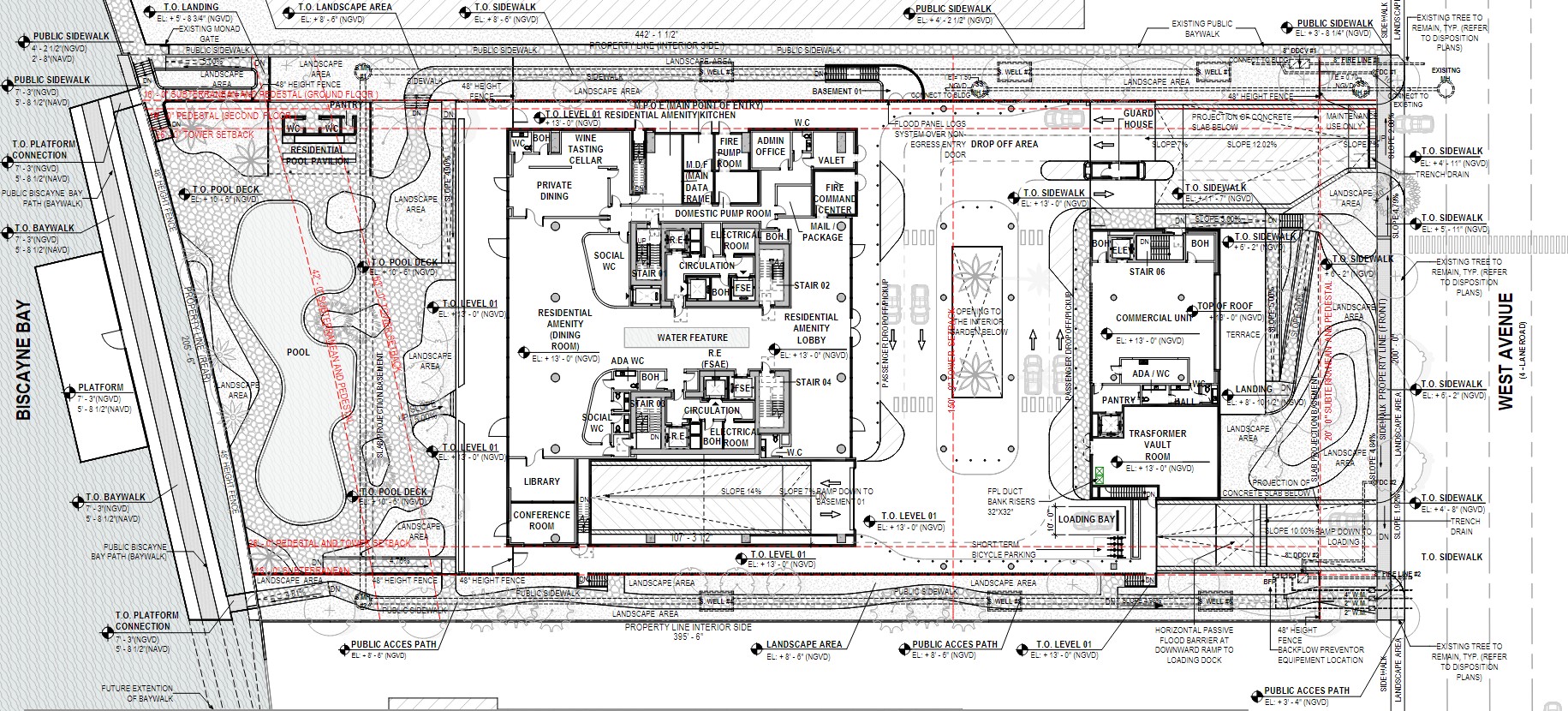
The proposed development will feature 106 residential units, with each floor designed to include only a select number of spacious homes. The average unit will span approximately 3,479 SF, while even the smallest unit stands at 1,767 SF. This represents a reduction from the original plan, which called for 125 units, the maximum allowed on the site. Residents will enjoy amenities including a pool, lounge areas, private driveway, gym, spa, and additional shared spaces.
The project also includes 11,267 SF (up from the original plans of 9,500 SF) of commercial space along West Avenue, with plans currently indicating a potential club or spa, although tenant uses could change. Beneath the ground floor, the building will feature three levels of parking, a relatively rare feature for waterfront developments in Florida (or any development for that matter), providing a total of 249 spaces.

According to the new design by ODP Architecture and MK27 Architecture, the 28-story (lower from an original 33 stories) building will reach a height of 363 FT at its tallest point, with the tallest occupied floor standing around 342 FT. Like many luxury towers in South Florida, the development will feature wrap-around balconies, floor-to-ceiling windows, and ceilings of 11 FT. The exterior will showcase a modern palette, highlighted by light wood accents, ultra-clear glass railings, and other refined architectural details.

According to permitting records obtained by Floridian Development, no demolition permits have yet been filed with either Miami-Dade County or the City of Miami Beach. However, given the experience of the development team and the rapid pace of planning, demolition permit applications are expected to be submitted in the near future.