
Plans for a nearly 1,000-foot tower has just been revealed along Biscayne Boulevard, setting the stage for one of Miami’s tallest tower proposals in recent years. Located at 130 Biscayne Boulevard, 146 Biscayne Boulevard, and 141 NE 3rd Ave, the property is being redeveloped into a mixed-use destination by New York City-based RFR Realty, which owns all three properties. The developer intends to demolish all three mid-rises on-site for condos, retail, and hotel uses. Designed by world-renowned Foster + Partners in collaboration with Miami-based Revuelta Architecture, the tower marks another major entry by Foster + Partners into Miami’s skyline.
Developments like 130 Biscayne have been made increasingly common by relaxed zoning and generous height limits, which have turned Downtown Miami and Brickell into Miami’s new hot spot for tall construction. Should it move forward, 130 Biscayne Boulevard would join the skyline near the Waldorf Astoria, now under construction.



Spanning 1,667,604 SF and rising 87 stories, the tower is organized into multiple program areas across its height. Starting from the crown and extending down to level 31, the tower will contain 414 condominium residences, including one-, two-, and three-bedroom typologies as well as penthouse units. These units, fit with terraces, will have access to panoramic views of the Miami skyline and Biscayne Bay.
Multiple amenity floors are also integrated throughout, with levels 31, 32, and 85 dedicated to resident amenities. The 85th floor will feature a sky-level pool, along with a spa, bar, meditation room, and other wellness spaces.
Below the residential levels, the tower will house 144 hotel rooms. Levels 19 through 30 will offer a mix of suites, master suites, and traditional guest rooms. Like the condominium residents, hotel guests will enjoy access to abundant amenities, including a 140-seat fine-dining restaurant, a sky bar, a lounge, landscaped gardens, a pool, and more.
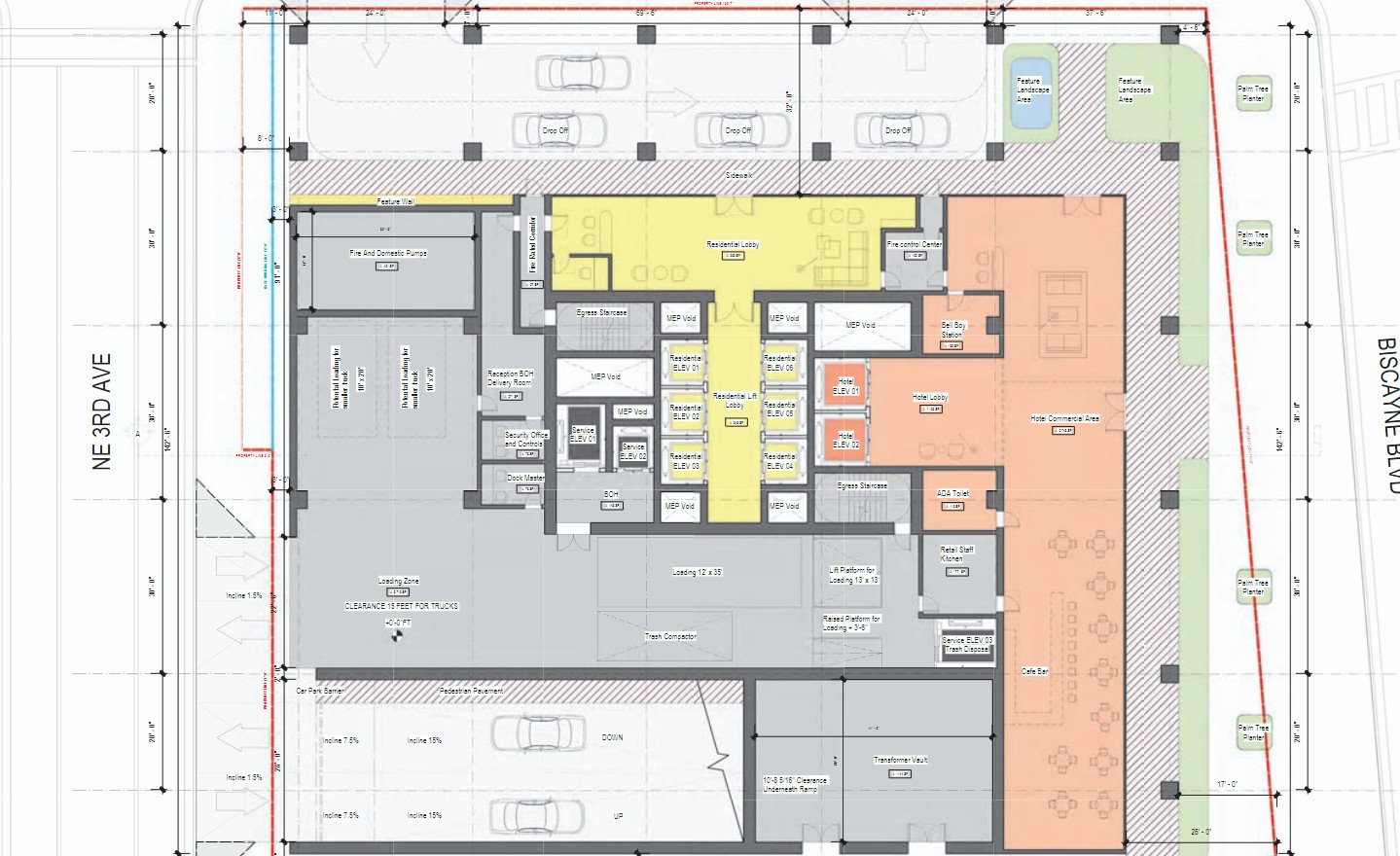
The lower portion of the tower will accommodate 495 parking spaces, 1,895 SF of ground-floor commercial space, and two basement levels for retail, hotel, and residential storage. The ground floor will also feature a residential drop-off area and a spacious residential lobby.



While Foster + Partners has not yet released word on the project’s design, the tower is envisioned with a clean rectangular form, a largely covered parking podium, and a uniform facade. Rising 955 FT, the structure will be topped with a glass crown. Although the height is just shy of the internationally recognized 300 M (984 FT) supertall threshold, it will surpass the soon-to-be second-tallest building in Miami, Cipriani Residences.

Despite the property being located within the City of Miami, the developer is seeking approval through Miami-Dade County. The plans are pursuant to regulations under the Metromover Subzone, which grants properties near Metromover stations to access faster approvals, higher density, and other development incentives.
Plans submitted to Miami-Dade last week are still under review. If the property is approved as part of the Metromover Subzone, the developer will proceed with an Administrative Site Plan Review (ASPR), a process in which county staff reviews the project rather than proceeding through lengthy public hearings.
Floridian Development is breaking this story and will continue following the project closely, delivering updates on approvals, design, and construction as they happen.