
A new mixed-income development is working its way through the approval process in Hallandale Beach, where Dragonfly Investments has submitted plans for a 12-story apartment building in the city’s Harlem Village neighborhood. Dubbed “The Gem,” the project is proposed for 411 N. Dixie Highway and would bring 170 units to a nearly one-acre assemblage that the city’s Community Redevelopment Agency has been looking to activate for years.
The CRA, which owns the entire assemblage spanning roughly 39,000 square feet, launched a formal request for proposals in 2024 with a clear vision in mind: a mixed-use development with retail, a meaningful residential component, and built-in affordability. Four developers threw their names in, with Dragonfly Investments coming out on top.

What emerged from that process is a project where 60% (or 102 units) of units are designated as affordable or workforce housing. The CRA’s original RFP outlined specific income tiers targeting households at 30%, 50% and 60% of Area Median Income, with at least five units set aside for senior housing at 20% AMI.
But, those targets may look different by the time the project breaks ground. The developer has since indicated that the income structure is still being worked out, hinting that the brackets laid out during the RFP process are likely to shift as the project moves through approvals. Given the changing nature of affordable developments, notably rising costs, this isn’t unexpected.




The 170 units will span studios, one-bedroom, and two-bedroom apartments, averaging 706 square feet per residence. The smallest unit will measure 474 square feet, while the largest stretches to 1,116. Regardless of income level, all residents will have access to the same amenity package, which includes a pool, lounge space, and a rooftop terrace (the latter of which was specifically required by the CRA).


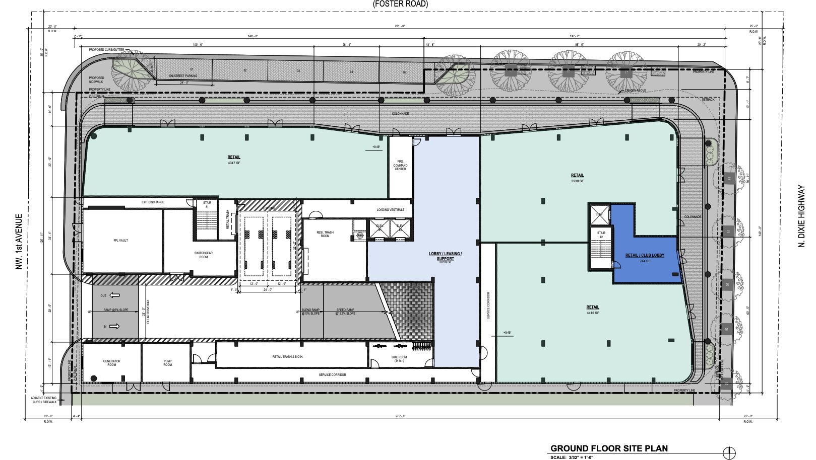
At street level, The Gem is designed to engage with the surrounding neighborhood. A total of 12,390 square feet of retail space is planned for the ground floor, with 1,000 square feet specifically for a local business. The surrounding streetscape is set to receive wider sidewalks, added greenery, and a colonnade along the building’s perimeter: offering pedestrians some cover from the elements.
The Gem itself will sit atop a three-story podium clad in decorative mesh screening, rising to 137 feet at its tallest point, or about 126 feet to the roofline. Corwil Architect, a locally based firm, is behind the design.


The facade is characterized by floor-to-ceiling windows, nearly 10-foot ceilings, private balconies, and a gray color palette that has become something of a Corwil signature. The project will feature 256 parking spaces; while the project’s application did not specify the total parking count dedicated to the public, the CRA’s RFP required that at least 50 spaces be owned by the city and made available for public use.
The land conveyance (or disposal/transfer) from the CRA to the developer has been approved, although current county documents still show the assemblage under city control.
The project is still in the proposal stage, though approval is expected to follow. If things stay on track, Dragonfly Investments is targeting a groundbreaking in the first quarter of 2027.