
A South Florida-based joint venture, composed of MG Developer and The Prosper Group, has submitted plans to Miami-Dade County for a luxury high-rise in North Bay Village. Located at 1681 and 1725 JFK Causeway, the project is proposed on a prime 1-acre waterfront site overlooking Biscayne Bay. The joint venture acquired the two parcels for $30.9 million last year, revealing plans for a groundbreaking 2027 and a completion in 2029.
The project joins a growing lineup of high-rise developments along JFK Causeway in North Bay Village, where Continuum is planning a two-tower district to the east and Sunbeam Properties is advancing a large-scale mixed-use district to the west.




Designed by Revuelta Architecture International, the 30-story modern tower is set to include 147 residential units and 12 guest rooms. According to a Graham Penn, an attorney representing the project, ‘all units within the building are large, family-orientated spaces, with the smallest unit size being approximately 1,027 square feet in size.’ Split between 21 one-bedroom units, 31 two-bedroom units, 74 three-bedroom units, and 2 four-bedroom units, almost every unit will have direct access to views of Biscayne Bay.
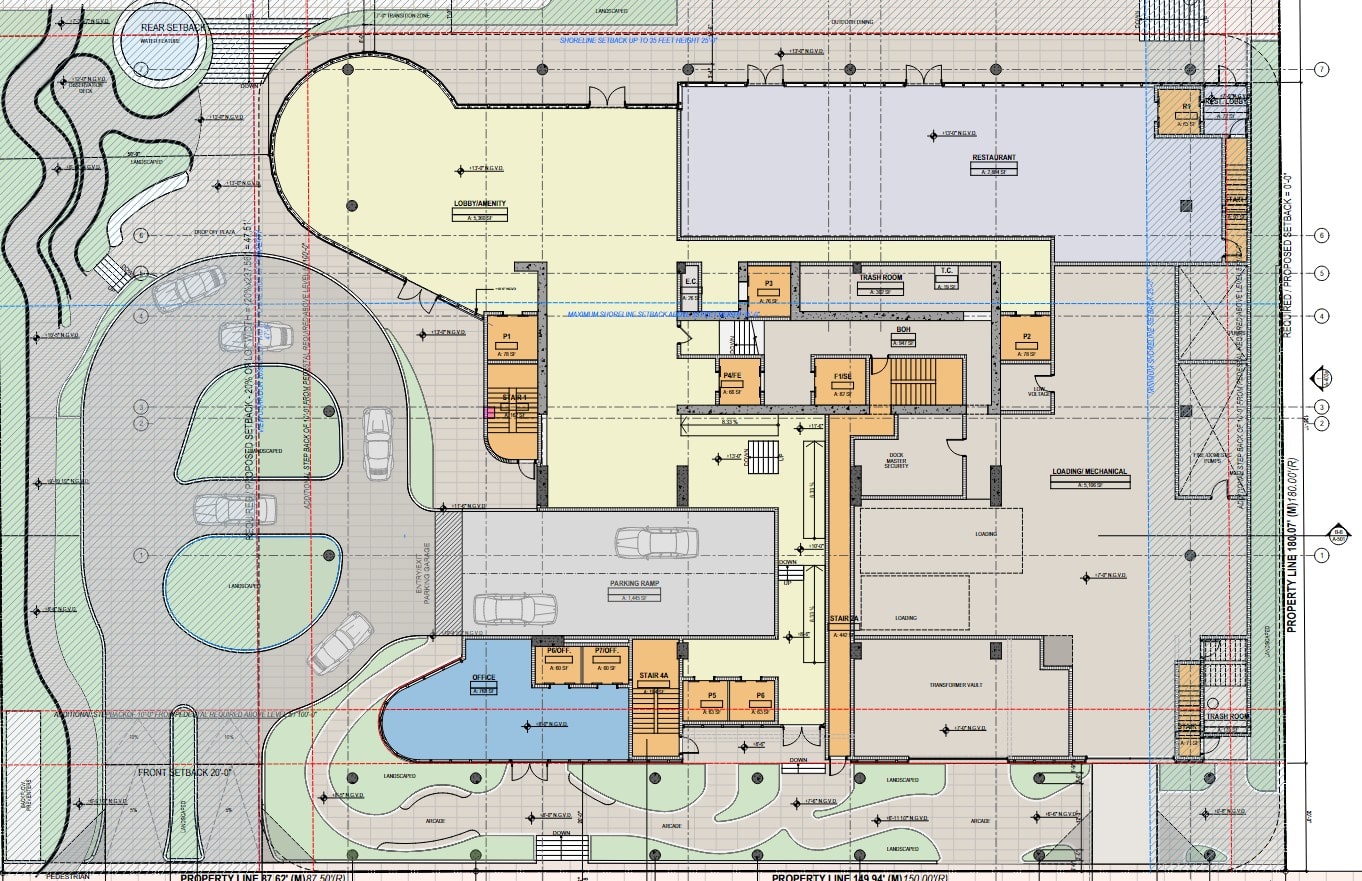
Beyond its residential offerings, 1725 JFK Causeway will include amenity spaces planned across the ground floor, level six, and the rooftop, totaling several thousand square feet. In total, six pools are planned throughout the building, four reserved for private residences and two for shared common areas. Final programming and layouts for these spaces have yet to be confirmed.
Each residence will also be allocated at least one parking space, for a total of 272 spaces within the parking podium. To enhance the building’s streetscape and conceal the structure from public view, the podium will be lined with residential units along its perimeter. Plans also include 3,308 SF of ground-floor commercial space and 6,433 SF of office space.

Set to rise 390 FT, the 30-story tower will feature materials such as perforated metal panels along the podium, impact-resistant glass, and glass balconies. Unlike most developments in South Florida, the project stands out for its exceptionally high glass-to-stucco ratio. In fact, if plans remain unchanged, the building will include almost no stucco at all, offering residents expansive, unobstructed views.

Because the joint venture submitted the project under Miami-Dade County, it is subject to a Shoreline Development Review, which applies to properties along Biscayne Bay. The review aims to preserve public views and access to the Bay by prioritizing pedestrian connectivity, water-related activities, and open view corridors.
To meet these requirements, MG Developer and the Prosper Group plan to include a public waterfront walkway, known as the Island Walk, running along the edge of the property, which will eventually link with adjacent segments to create one of the longest continuous public walkways in North Bay Village. The project also maintains a 20% view corridor along the west side of the site.
However, due to the property’s strict setback requirements, fully complying with shoreline requirements would make the site undevelopable, according to the project’s representative. As a result, the developer is requesting an exception to certain setback regulations.
While The Prosper Group and MG Developer continue planning for this project, both firms have been expanding their work beyond North Bay Village. Earlier this year, The Prosper Group submitted plans for one of the tallest proposed developments in Brickell, located at 1040 S. Miami Avenue, which is currently under review. The firm is also involved in a joint venture for Ora Hotel and Residences in Tampa, where sales have reportedly been strong.