
The House of Wellness project is entering its pre-construction stage, with newly released interior and exterior renderings coinciding with the start of sales. The 34-story tower, planned for three assembled parcels at 132, 142, and 152 SW 9th Street in West Brickell, is being developed by North at Brickell VI, LLC and designed by Studio MC + G Architecture. After several iterations over recent months, the proposal now appears largely finalized as the development team awaits final approvals from Miami-Dade County.
The developer, a joint venture between Oak Capital and Edifica, brings an international portfolio spanning the United States and Latin America. In Brickell, the partnership is already active on multiple fronts, with Domus Brickell Center under construction and Domus Brickell Park approaching completion. Given the development activity from the duo, this likely won’t be their last project either.



Plans filed with Miami-Dade County detail a program totaling 656 lodging units, designed to accommodate both short-term and extended-stay occupancy depending on owner preferences. The unit mix ranges from compact studios, to one-bedroom layouts, and larger two-bedroom residences. Amenities are centered around a wellness-oriented lifestyle, including a rooftop pool, spa facilities, a juice bar, dedicated wellness spaces, and multiple social lounges.
Units will feature 9-FT-4-IN ceilings, expansive balconies in select layouts, “premium appliances”, and large windows designed to maximize natural light. Depending on orientation and floor level, residences will offer views toward Brickell, Little Havana, and surrounding areas.
Pricing guidance circulated by several brokerage firms, including Miami Residential, indicates entry-level units are expected to start in the low-$400,000 range, with pricing rising to roughly $800,000 for larger layouts.



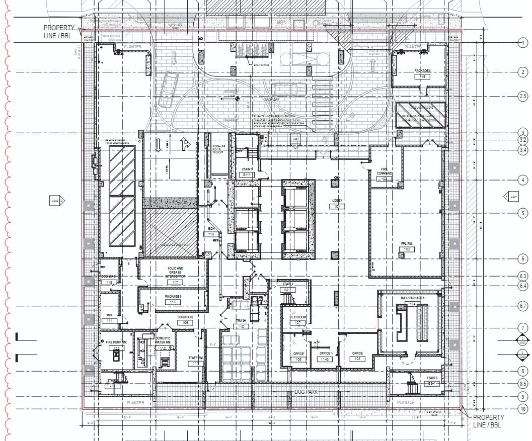
For the 656 lodging units, the development will include 199 parking spaces in the podium, despite Miami code requiring zero parking spaces. This parking to units ratio is particularly due to the unit type being lodging units, but also due to proximity to the Metrorail nearby.
While the development features no retail on the ground floor, the existing site’s landscaping and sidewalk width will be expanded. Current sidewalks expand 6 FT, with the new sidewalks expanding it beyond that. In addition, the ground floor includes bike parking and a dedicated drop-off zone for residences, handled by an in-house valet parking service.
Because the project will rise 34 stories, it is expected to reach an overall height of approximately 366 FT. The facade will feature a predominantly gray palette with stucco finishes, glass balcony railings, and a more colorful treatment at the podium level. Earlier iterations of the project contemplated a taller structure rising 44 stories, or roughly 456 FT, indicating the developer has since reduced the height by a whopping 10 floors.


Current site conditions show no visible construction activity, though permitting activity remains active, with early inklings of a demolition permit moving through the pipeline.