
Another multifamily proposal is advancing near Brownsville’s Metrorail Station, as transit orientated development in Miami picks up. Known as Elevate 54, the project intends to serve as a 75-unit multifamily development, developed by 54 St Owner, LLC, an affiliate of Bay Heights Capital. It’s the latest project under the group, which has proposed multiple developments under the ‘Elevate’ branding in Miami-Dade.
The development is planned for 2845 NW 54th Street, at the intersection of NW 29th Avenue and NW 54th Street. Plans indicate the project is intended to move forward under Florida’s Live Local Act, a state housing program that allows qualifying residential developments to bypass certain local zoning restrictions in exchange for the inclusion of workforce or affordable housing. Projects approved under the legislation may benefit from increased density, additional height allowances, and other incentives.
The development site consists of four assembled parcels totaling 0.702 acres. The properties were acquired in late 2024 for a combined purchase price of roughly $1.225 million. The properties were acquired in late 2024 for a combined purchase price of $1.225 million. The site is currently cleared and operates as a car lot, conditions that are expected to limit the scope of site preparation required prior to ground breaking.




Units in the 75-home development will range from studio, one-bedroom, and two-bedroom apartments. One-bedroom units account for the majority of the total, representing more than half of the project’s residential mix. While the project is being submitted under Florida’s Live Local Act, which allows for a maximum residential density of up to 250 units per acre, the proposed development utilizes a substantially lower density of approximately 100 units per acre. In exchange for these zoning changes, the project is required to allocate 40% of its units, or 30 apartments, as workforce housing priced at or below 120% of Area Median Income.
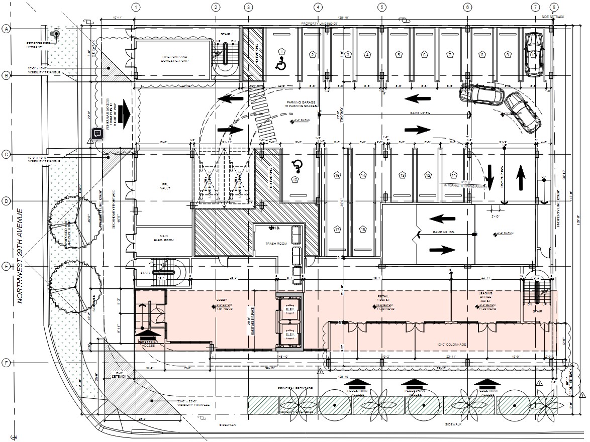
At ground level and within the podium, the development will include 1,090 SF of retail space alongside parking for 75 vehicles. Additional ground-floor uses include a residential lobby, leasing office, and expanded sidewalks buffered by landscaped greenery. Under Miami-Dade County code, qualifying workforce housing projects are eligible for reduced parking requirements. Based on the project’s residential square footage, only 36 parking spaces would be required, down from an original requirement of 88.

Designed by Caymares Martin Architecture, the development is planned to rise eight stories, reaching 90 FT at its tallest point. For context, the only taller structure in the immediate area is Brownsville Village, where the tallest building rises to roughly 150 FT.
The building’s facade will feature a palette of red, white, and gray tones. Exterior materials will include smooth stucco finishes, aluminum railings, impact-resistant glass, and vertically articulated textures across select portions of the elevation.


There are no permits submitted to Miami-Dade as of February 2026. It’s unknown if Elevate 54 is being planned for construction, or to be sold with entitlements. However, the application submitted to the county is still under review. Submitted through an Administrative Site Plan Review, the development will move through approvals faster, primarily because the Live Local Act expedites projects by limiting public review.