
A new high-rise residential tower is moving through the approval process in North Bay Village, adding to a growing wave of development proposals and active construction across the city.
Planned for 7915 to 7913 West Drive, the project is being advanced by El-Ad Group, which is seeking city approval for a 26-story building. The proposal follows the firm’s recent activity elsewhere in South Florida, including its involvement in The District in Davie, a four-tower development currently underway. Designed by Garcia Stromberg, the North Bay Village project calls for 94 residential units and is scheduled for review by the Planning and Zoning Board on March 31st, where it’s expected to receive approval.
The site has already been the subject of a prior development proposal. S2 Development previously secured approvals for a 22-story project known as Marina View, also planned with 94 units but at a lower height. That earlier plan required multiple zoning modifications, including bonus height and an increase in density from the base 72 units to 94.
El-Ad acquired both the property and its entitlements from S2 Development in May 2025 for $20 million, with a $10 million loan from Metropolitan Commercial Bank backing the purchase. The developer is now returning to the city with revisions to the approved site plan and development agreement. While the unit count and previously approved setbacks remain unchanged, the updated proposal seeks to increase the building height from 240 feet to 298 feet, along with several additional modifications.



Plans submitted to the city indicate the residences will be designed as larger, “family-oriented” units. Sizes will start at 1,158 square feet, with a mix of 20 one-bedroom units, 29 two-bedroom units, 35 three-bedroom units, and 10 four-bedroom units. Amenities are planned for levels 7 and 20, each offering expansive indoor and outdoor spaces. While detailed programming has not been disclosed, typical features in comparable developments include fitness centers, spa facilities, and recreational areas.
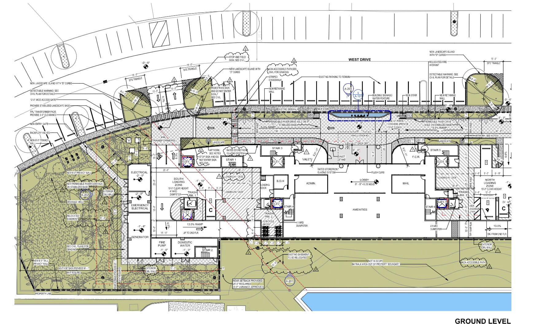
Units will include large balconies and nearly 11-foot ceilings, with the building oriented to capture panoramic waterfront and city views. At street level, the project does not include retail space but will feature a private drop-off area, a residential lobby, and additional amenities. A total of 201 parking spaces is proposed. While the previous approval required a parking variance, the updated plan complies with revised city requirements that adjust parking requirements, though the developer is requesting approval for 14 compact spaces (which are not permitted by right).

Architectural plans show a 298-foot structure rising to 308 feet at its highest point. The design emphasizes floor-to-ceiling windows and curved balconies. A rectangular cutout near the upper floors will frame views from the 20th-level amenity deck, which is expected to include an infinity pool.

City staff has recommended approval of the requested modifications, noting that the changes are relatively limited beyond the increase in height. With several taller and denser buildings located nearby, the proposal is widely expected to advance through the approval process.