
Miami’s Design District high-rise pipeline continues to build momentum as another development team advances plans for a mixed-use project in the neighborhood. The proposal calls for a luxury hotel and a high-end condominium tower positioned between two buildings, which (if built ahead of other proposals) would become the Design District’s first true high-rise, following decades of concepts that either stalled, evolved, or never advanced beyond planning. The development is scheduled for review by Miami’s Urban Development Review Board on January 21st.
Planned for 3995 N Miami Avenue, the project spans an assemblage of 15 low-rise structures currently occupied by a mix of office, retail, and leisure uses. The properties were acquired for approximately $170 million in late 2022. The development is being led by a joint venture between Constellation Hotels Holding, Raycliff Capital, Miami Design District Associates, and Fort Partners, with Miami Design District Associates itself formed through a partnership involving Dacra, L Catterton Real Estate, and Brookfield Properties.

According to development details submitted to the city, the project would include 143 condominium residences and 105 hotel units, comprising 85 traditional hotel rooms and 20 condo-hotel units that will likely allow short-term rental flexibility. All condominium residences would be located in the shorter building on the northern portion of the site, while the taller tower would house the hotel program, with the condo-hotel units positioned toward the upper floors.
Hotel rooms are planned to range in size from 489 SF up to 1,226 SF, while the condo-hotel units would be significantly larger, spanning 1,613 SF to as much as 6,594 SF. Condominium residences in the shorter tower are also on the larger end, with unit sizes ranging from 902 SF to 2,975 SF.
Amenities for the hotel and condominium components will be fully separated. Hotel guests will have access to amenities that include a large spa, dining areas, terraces, and a rooftop pool. Condominium residents, meanwhile, will have their own private and shared amenities, including a fitness center and a separate rooftop pool. According to Cube3, the project’s architect, residences in both buildings are ‘arranged to maximize views toward the ocean and sunset by looking past each other in plan’.
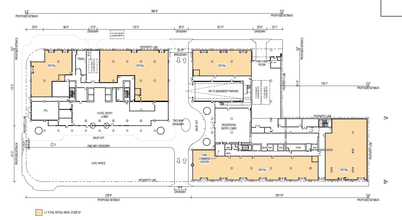
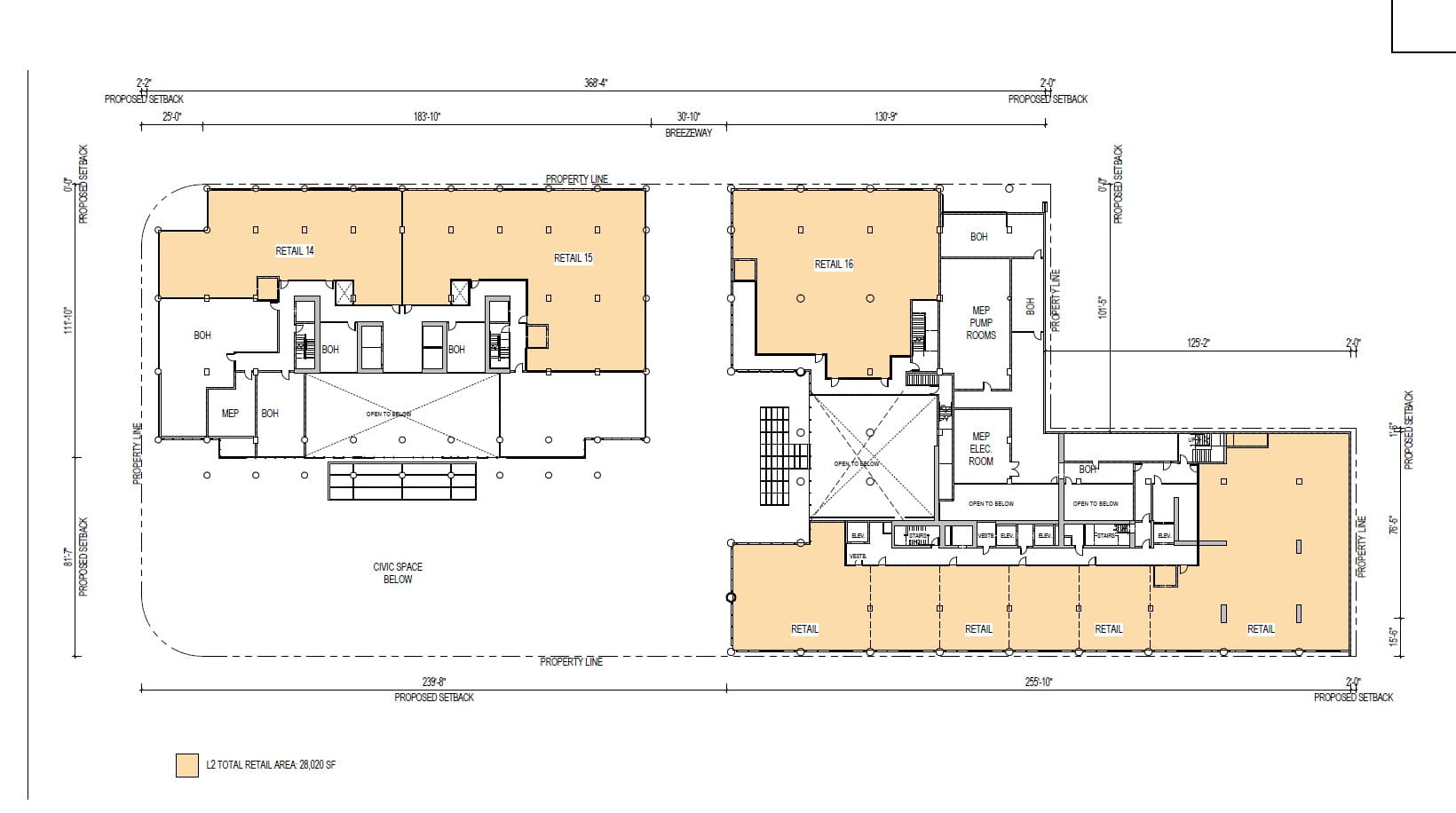
At street level, the project will introduce 51,840 SF of commercial space spread across the first and second floors, configured as multiple retail slots. Given the site’s location within the Design District, the retail component is likely to feature a mix of designer brands and high-end local tenants. According to a letter of intent, Dacra (a partner in the project) ‘will ensure a curated group of retail tenants’ to fill out the retail units.


To accommodate demand generated by the hotel, residential, and retail uses, the development also includes a single-level underground parking garage with 178 spaces, a rare feature given Miami’s groundwater conditions and terrain.
Among other changes to the site includes significant upgrades to the pedestrian realm, featuring designated drop-off zones and a large civic space along the southern portion of the site. That public-facing area would be landscaped with substantial greenery, multiple pedestrian pathways, and integrated lighting to enhance walkability and street-level activity.

According to the elevations, the shorter condominium tower will rise 12 floors, reaching approximately 185 FT to its tallest point, while the taller tower will rise 24 floors, reaching approximately 309 FT. The facade will feature a palette of glazed terracotta, terrazzo pavers, stone cladding, and complementary materials in beige, white, and light gray tones. These design choices are intentional, drawing inspiration from Miami’s modernist architectural heritage.

The site is currently split between T5-O and T6-12 zoning, prompting the developer to require a unified site approach through a Special Area Plan that allows height and density to be distributed across the property. Approval of the SAP is required and falls outside the authority of the Urban Development Review Board; however, the UDRB will still review the project’s design and massing as part of its role.
While no naming scheme is confirmed, recent documents call the project MDD-West, short for Miami Design District West.