
In Tampa’s Westshore district, the final undeveloped parcel within Midtown Tampa may soon give way to a new residential high-rise, marking the last major addition to a mixed-use neighborhood that has steadily taken shape since 2019.
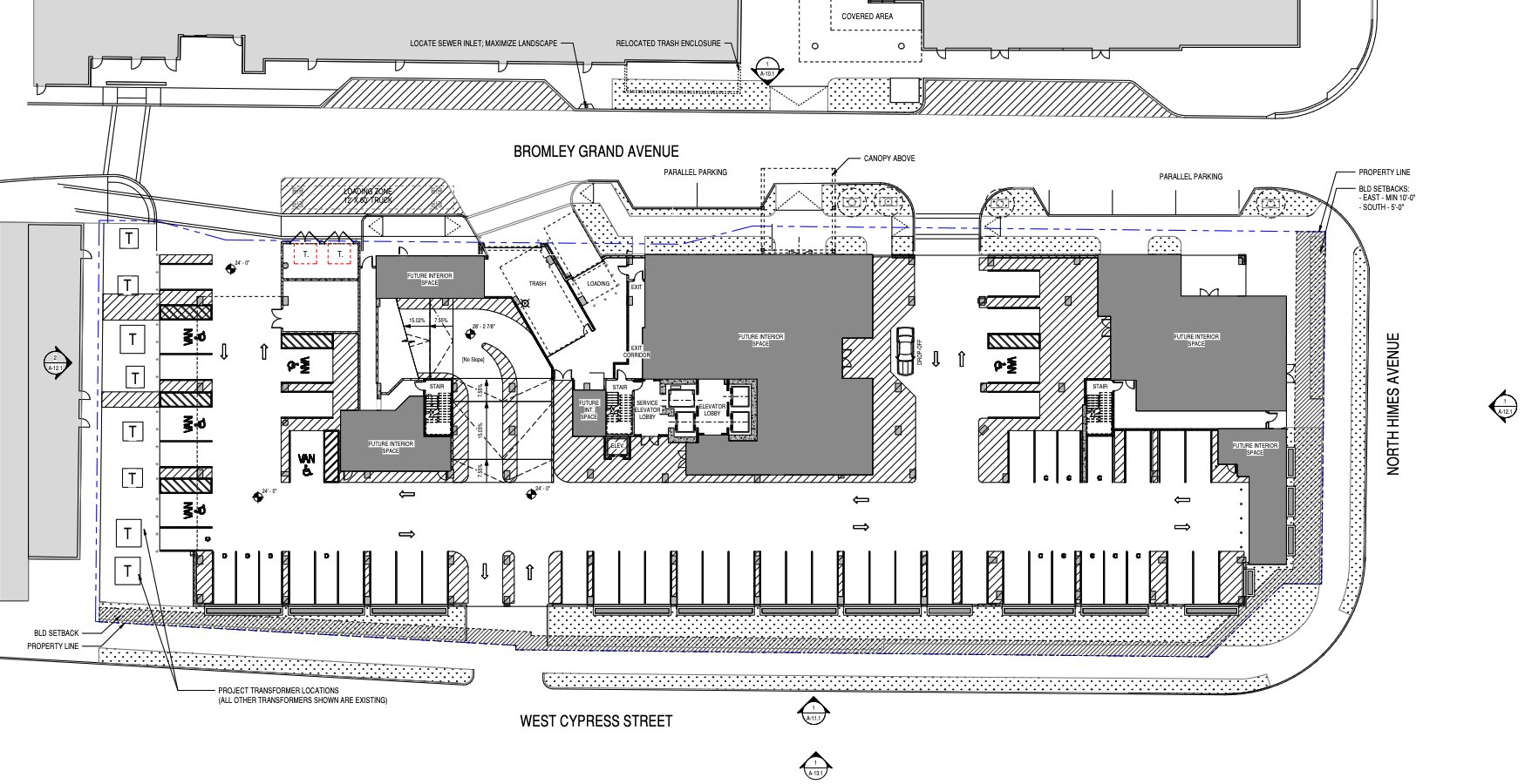
Plans were recently submitted for a 23-story tower on a 1.39-acre site at 3615 West Cypress Street, a parcel that is being used primarily for surface parking. The site sits within the broader 19-acre Midtown Tampa development, where zoning approvals for a project of this scale have already been secured, situating the project for a relatively smooth path through the city’s review process.

The application comes from Bromley Companies, which has played a central role in shaping Midtown Tampa, including the recent completion of an 18-story office building that now serves as the headquarters for TECO. While Bromley is listed as the property owner, the development lists the developer as B-W MTS, LLC, an entity associated with MTS Securities.
According to preliminary plans, the project, referred to as Midtown South Tower, will deliver 339 residential units. The unit mix includes 15 efficiency apartments, 296 one- and two-bedroom units, and 28 larger residences with three or more bedrooms. Full details on amenities have not yet been released, though the scale of the building suggests a comprehensive residential offering.
In addition to housing, the tower will incorporate 10,481 square feet of retail or co-working space on levels one and two, activating the street level along Bromley Grand Avenue within the development. In contrast, the project’s parking structure will be oriented toward West Cypress Street, where portions of the garage will remain visible.

The development includes 546 parking spaces, slightly below the 553 spaces required under code. However, the developer notes that Midtown Tampa as a whole maintains a surplus of parking capacity, which could be used to offset any shortfall at the site if necessary.
Early elevations by Rule Joy Trammell + Rubio Architecture indicate the tower will rise 253 feet to the roofline and roughly 270 feet at its highest architectural point. Design details remain limited, although the parking podium appears more articulated. Plans show a mix of windows, artistic canvas screening elements intended to cover the structure’s podium, and sections of exposed garage.



With rezoning already in place, the proposal is now moving through the city’s approval process, where it is expected to advance as the final piece of a development that has come to define Tampa’s evolving Westshore skyline.