
A largely vacant lot along Harriet Tubman Highway in Biscayne Gardens, an unincorporated area of Miami-Dade County just north of the City of Miami, may soon see redevelopment. On March 4th, a mixed-use proposal designed by the Gado Group and developed by RG Realty Investments was submitted to the county as a pre-application. The project envisions a modern residential building with dozens of units above ground-floor retail, introducing new housing density and activating the busy corridor with additional street-level activity.
The project will rise on a 2.66-acre site spanning 14501 W Dixie Highway (Harriet Tubman Highway) and 1595 NE 145th Street, an assemblage acquired for more than $2 million. Much of the property has already been cleared following demolitions that occurred several years ago, though a small corner structure remains slated for removal. The pre-application marks the first formal step in the county’s review process, with additional filings and reviews expected before construction can begin.


While plans remain in the early stages, the development is expected to include 110 apartments ranging from one- to three-bedroom layouts. One-bedroom units, measuring approximately 700 SF, will be the most common, followed by two-bedroom units at around 900 SF, and larger three-bedroom residences spanning roughly 1,400 SF. The proposed unit count slightly exceeds the site’s base density allowance of about 95 units under current zoning guidelines, meaning the developer would likely need to seek an exception as part of the approval process.

Residents would have access to a variety of amenities, including rooftop lounge/seating areas, a rooftop pool and jacuzzi, and multiple rooftop garden and green space areas offering views of the surrounding cityscape. Residences are planned with 12-FT ceilings, featuring balconies and floor-to-ceiling windows.
As part of the mixed-use development, the project would also include approximately 25,250 SF of retail space, primarily located along the ground floor frontage. A total of 282 parking spaces are planned to accommodate both residents and commercial visitors, both in a 9-story garage and surface parking on the south side of the site.

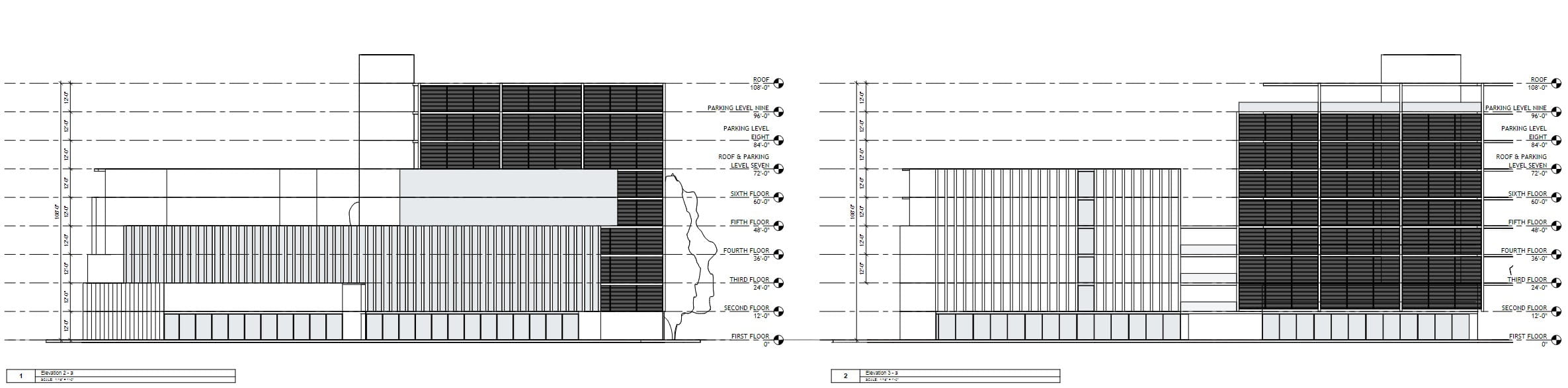
Rising 9 stories, the development will consist of unique, interlocking structures connected by sky bridges to form a cohesive whole. The overall building height, including the parking garage, will reach 108 FT, while the residential portion itself will span up to 72 FT.
The facade will showcase a palette of light blue, transparent glass, complemented by metal accents and brown vertical screenings, which will be applied to both the building exterior and the parking podium for a contemporary look.



Unlike many recent South Florida projects using the Live Local Act, this development will follow the standard zoning process. A recent letter from Miami-Dade’s County Planning Division allows the property’s “Business and Office” land use category to apply across the entire site, clearing the way for the mixed-use project. Under county rules, the site could support up to 36 residential units per acre and a building intensity of up to 2.0 FAR. The developer plans to pursue a zoning change from its current business designations to formally allow retail along the corridor with housing integrated above, while including buffering to protect nearby homes (among other changes).
According to Miami-Dade permitting records, no demolition permits have been issued for the remaining on-site parcel, and no permits for site work or tree removal have been filed. As this represents the first iteration of the project, the planned development, spanning over 230,000 SF, is expected to evolve over time.