
A slender site in unincorporated Miami-Dade County, situated between Miami and North Miami, is quietly advancing through the approval process for a new multifamily high-rise development. Led by New York City-based Ben Josef Group Holdings, the proposal calls for two residential buildings rising from a shared podium, designed by Kobi Karp Architecture. The project is now on its latest iteration, following a review process that began when first designs were released in 2024.
Planned for 11400 Biscayne Boulevard, the project will be the first development on the site in decades, following a long period in which the property remained vacant. Despite its narrow profile, the site will span a surprising four acres.


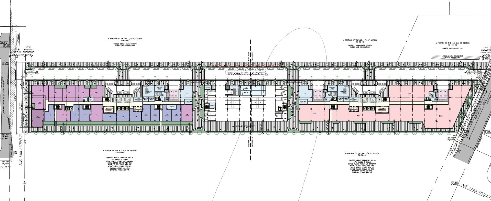
Coined Biscayne Shores, the latest plans call for 550 residential units, including 206 workforce units (priced no more than 120% of the Area Median Income) and 344 market-rate units. This equates to a density of 135 units per acre, with a unit mix spanning studio, one-bedroom, two-bedroom, and three-bedroom apartments.
Such density is not permitted under existing zoning and would be permitted through a proposed amendment to the County’s Comprehensive Development Master Plan (CDMP). The amendment would allow higher residential density for a limited number of qualifying sites within the SMART Plan corridor buffer area, while the applicant is also seeking changes to the site’s Future Land Use Map (FLUM) designation.
In addition to the residential units, the development will include a shared amenity deck on the fifth level, featuring a swimming pool and lounge areas. Rooftop decks are also planned above the 15th and 11th floors. Residents will have access to 520 vehicle parking spaces, along with 292 bicycle parking spaces.
The ground floor will introduce significant changes to the existing site, including approximately 20,000 SF of retail space, new pedestrian paseos, and a new private street linking Biscayne Boulevard with NE 14th Avenue. Landscaping and greenery will be incorporated along the streets/paseos.

According to elevations submitted by Kobi Karp Architecture, the east tower is planned to rise 15 stories, reaching 179 FT to its highest point, while the west building will stand 11 stories at 127 FT. Earlier elevations showed the west structure topping out at 107 FT, indicating a height increase in the latest plans, while the maximum height of the east tower remains unchanged.

Although the overall massing and design of the project has largely been the same, the updated design shifts toward a facade with more linear balconies and a heavier use of stucco relative to window area.
According to the filing with Miami-Dade, corrections are still required before the applicant can receive approval.