
Signs of life are emerging for ArtsPark Lofts, a high-rise first proposed in 2022 for Fort Lauderdale’s Flagler Village neighborhood. Led by Fort Lauderdale-based Merrimac Ventures, the project has undergone several minor revisions over the years, including adjustments to its height, parking, and unit count. The latest amendment is now scheduled for review by Fort Lauderdale’s City Commission on October 23rd, where members will vote on the updated site plan.
If approved, ArtsPark Lofts will be Merrimac Ventures’ second residential project in Flagler Village. The firm is currently building a two-tower development at 317 N Federal Highway, which broke ground last year.
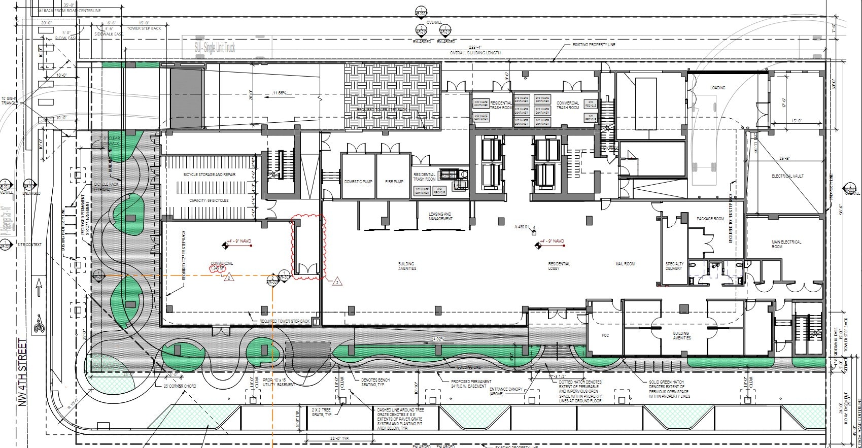
Located at 407-421 N Andrews Ave, ArtsPark Lofts received its first update in early 2023 when the developer increased the tower from 30 to 31 floors, mainly due to an expansion of the podium. Following this change, the developer also raised the parking count from 359 to 372 spaces. Now, Merrimac Ventures is proposing a further increase to 32 floors, adding an additional residential floor and bringing the total unit count from 289 to 301. At the same time, a slight reduction in parking lowered the total to 367 spaces.
In summary, the project has evolved slightly since its original 2022 submission. The tower has moved away from a 30-story building with 289 units and 359 parking spaces to a 32-story structure, containing 301 units and 367 parking spaces. Ground-floor commercial space was also slightly adjusted, bringing total square feet from 1,914 to 1,249.

While the overall design by Fort Lauderdale-based FSMY Architecture remains largely unchanged, the tower has grown slightly taller. Earlier plans had the building rising 368 FT, but the updated proposal now reaches 372 FT.

While changes like these may be modest, the fact that the project is moving forward is the most important takeaway. Recently, several developments in Fort Lauderdale have either stalled or been put on hold. Shifting market conditions and rising construction costs have prompted developers, such as Woodfield Development, to pause projects like 520 Broward, a 41-story tower located west of ArtsPark Lofts. According to ApexOne, that development is now indefinitely on hold.
For Merrimac Ventures, progress on the first tower of their 317 N Federal Highway development has also been indefinitely stalled, though the reasons for the delay remain unclear.
According to city documents, staff recommends the proposal be considered by Fort Lauderdale’s City Commission. Although the tower exceeds the allowable height by two floors, a project representative notes that it “provides less mass than is otherwise permitted by code.”