
Wynwood Norte is once again emerging as a focal point for Live Local Act development in Miami-Dade, with the recent approval of Wyn Park, a new high-rise proposal that marks the third such project in the neighborhood since the law’s enactment. Once characterized by single family homes and low-rising apartments, Wynwood Norte has become a magnet for developers, fueled by the commercial and residential success of neighboring districts such as Wynwood, Edgewater, and Midtown.
The latest proposal comes from ABH Developer Group, a firm with more than a dozen projects planned or underway in the area. Wyn Park will be the company’s largest undertaking to date: a 36-story residential tower planned to include 293 units, made feasible through the far-reaching provisions of Florida’s Live Local Act.
By utilizing the Act, developers gain access to substantial incentives: the ability to build at the highest residential density allowed anywhere in the city, match the tallest height of a plot within a one-mile radius, and bypass many of the typical zoning constraints that once limited growth. For Wyn Park, that translates to an allowable density of up to 530 units, even though the current plan calls for fewer.





The project will feature unit layouts from studios averaging 450 SF, one-bedroom apartments around 600 SF and two-bedroom homes ranging from 708 to 1,071 SF. In accordance with the Live Local Act, 40% of the units will be designated as workforce housing, reserved for essential workers such as teachers, firefighters, and other community members. This translates to 117 workforce units, each priced at or below 120% of the Area Median Income (AMI). According to a representative for the project, the development will offer ‘top-notch, beautifully designed mixed-income’ apartments.
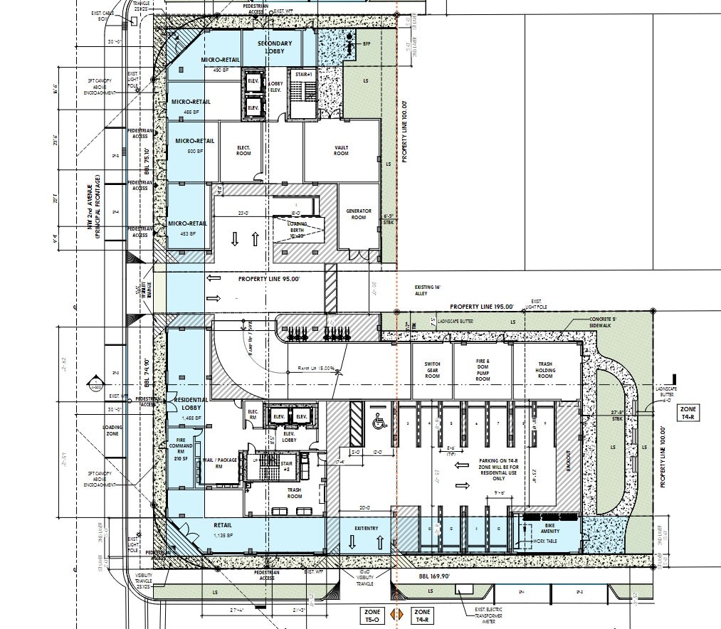
Starting from the ground floor and rising through the multi-story podium, the development will incorporate both traditional and micro-retail spaces, totaling 3044 SF. The second floor will also include 5,659 SF of office space, giving commercial activation to not one but two floors of the podium. According to Modis Architects, the official designer of the building, the podium will feature ‘perforated metal panels with tree leaf designs to conceal internal elements, soften rigid lines, and allow natural light and ventilation’. In total, the podium will house 196 parking spaces.
In addition, the development will house a 1,069 SF rooftop restaurant with a deck overlooking Miami. It’ll be one of the first rooftop restaurants at that height in the area, and certainly the first in Wynwood Norte.

To make the current design and specifications possible, the developer is requesting multiple waivers, including a 30% parking reduction within a transit corridor, waivers for certain elements of the parking podium, and additional lot coverage.
Reviewed and approved by Miami’s Urban Development Review Board, the development features a facade characterized by charcoal and white tones, incorporating materials such as wood cladding, metal railings, metal accents, and stucco. According to The Real Deal, some board members described portions of the design as having “lego-esque” elements, while also citing an apparent disconnect between the tower and podium. Despite these concerns, the 366 FT tower ultimately received near-unanimous approval.

With developers receiving approval on October 15th, the next phase will involve additional approvals from the planning department, followed by the permitting process.