
Channelside’s largest hotel project is moving closer to construction in Tampa, following the recent submission of foundation permits to the city. Led by McKibbon Hospitality, the development is planned as a dual-flag hotel featuring both AC Hotel and Moxy, brands operated under the Marriott International umbrella. Planned for 111 N. Meridian Avenue, the 13-story hotel would add a modern presence to the Channelside district. Designed by Atlanta-based LPB & Associates, the project has advanced quickly, with the recent permitting activity marking the latest step in a months-long process that included rezoning approval from Tampa City Council just a few months ago.
McKibbon Hospitality acquired the 0.74-acre site for approximately $9.3 million in early 2025. The property was previously slated for a self-storage facility by UDR, though those plans were abandoned after only the residential component of the masterplan was completed. Once delivered, the hotel will become the second in the immediate area, following the opening of a nearby dual-flag hotel at N. Meridian Avenue and Kennedy Boulevard in 2019.


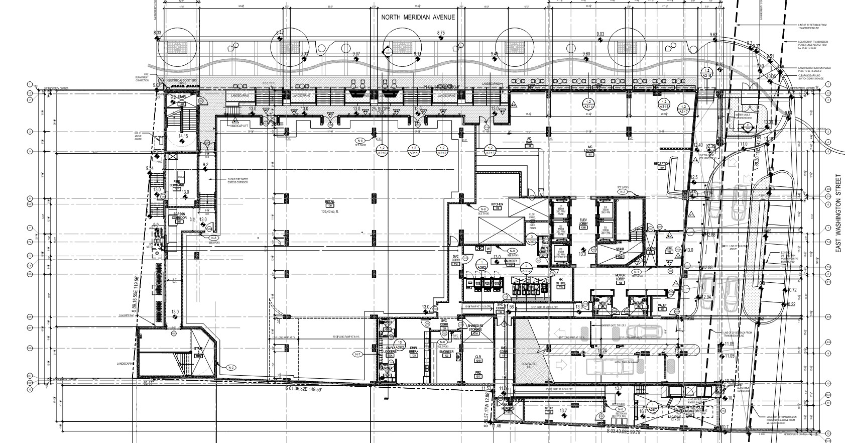
The site is currently cleared following earlier site preparation and demolition work completed under the property’s previous developer, UDR. The newly submitted permit is limited in scope, covering drilled piers and concrete footings for the tower’s foundation, with designs helped by recent surveying and geotechnical work. Given the scale of the project, measuring roughly 280,000 Gross SF, the development is subject to additional structural and safety reviews to meet code requirements.
A construction contractor has not yet been identified yet. However, multiple firms are listed on the application, including Bohler, which is serving as the project’s civil engineer.
Plans filed with the city indicate the hotel will include 310 guest rooms, When first reported by the Tampa Bay Business Journal, the room count was broken down into 175 rooms under the AC Hotel brand and 135 rooms under Moxy, a configuration that appears unchanged in the latest filings.
Parking plans have also evolved since early reporting. Initial concepts called for just 57 spaces, but updated civil plans now show a significantly increased parking program. The project is currently proposed to include 202 parking spaces, a figure more realistic considering the size of the parking podium and the number of hotel rooms listed previously.
At street level, the hotel will include an AC Lounge, a retail space, and a main reception area. Overall, the project is planned to deliver approximately 25,000 SF of commercial space, consisting of roughly 14,000 SF of retail and 11,000 SF dedicated to restaurant uses, according to the latest plans. A designated drop-off area for valet and parking will be located along East Washington Street.

The hotel will feature a facade composed of light and dark blue tones, accented by white and gray finishes across stucco surfaces and impact-resistant glass. A distinctive crown, defined by a sloped roofline, will cap the structure. According to the developer, the building is expected to rise approximately 179 FT to its tallest point.
The foundation permit is still pending approval and represents the only construction permit applied for the site thus far. McKibbon Hospitality had previously targeted a February 1, 2026 groundbreaking; however, with the permit submitted on January 26, meeting that timeline appears unlikely unless the event is ceremonial. However, a 2026 start for vertical construction remains very much on the table and continues to look probable.