Floridian Development
Articles
Cities
All Cities
Miami
Miami Beach
Tampa
Fort Lauderdale
West Palm Beach
Hollywood
North Miami Beach
Pompano Beach
South Miami
North Bay Village
Hallandale Beach
North Miami
Boca Raton
Questions & Answers
Articles
Cities
All Cities
Miami
Miami Beach
Tampa
Fort Lauderdale
West Palm Beach
Hollywood
North Miami Beach
Pompano Beach
South Miami
North Bay Village
Hallandale Beach
North Miami
Boca Raton
Questions & Answers
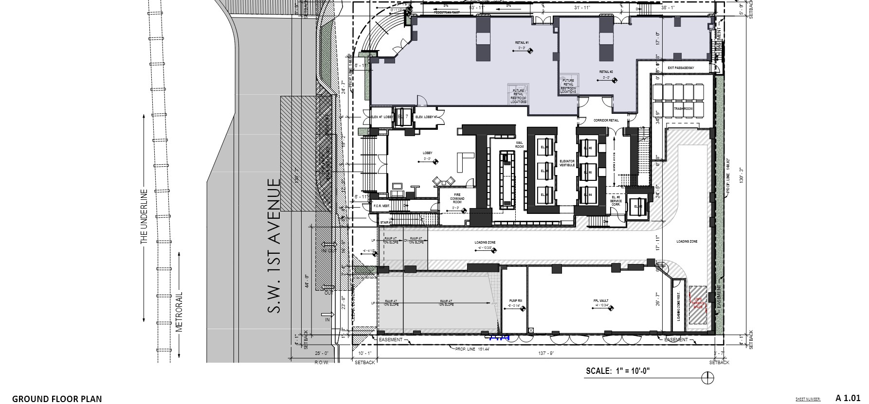
Brickell Gateway
Project Phase:
Demolition/Site Prep
Basics:
Units: 504
Floors: 62
Parking Spots: 332
Hotel Rooms: 0
Height (FT): 773
Commercial (SF): 16591
Office (SF): 0
Companies:
Developer: Gazit Horizons /Atlantic Pacific
Architect: Corwil Architects
Additional:
Project Usage: Multifamily
City: Miami
Site Plan & Elevations:
Associated Articles:
March 13, 2026
Signs of Life Emerge at Brickell Gateway as Developers File Updated Plans