
Fort Lauderdale’s newest high-rise, Andare Residences by Pininfarina, is seeing increased construction activity as the development targets a 2027 completion. After breaking ground in mid-May, developer Related Group has submitted new permit applications for tower cranes, alongside a wave of additional construction-related filings. The tower is planned for 521 East Las Olas Boulevard, and will become the third Related Group high-rise within a 1,000 FT radius across just three parcels, joining Veneto and Icon Las Olas. Recent construction documents obtained through a public records request by Floridian Development indicate the project will deliver 192 ultra-luxury residential units.
The increased construction activity comes after Related Group secured a construction loan of about $231 million from Apollo Global Management. At the time of the groundbreaking, the developer stated that roughly half of the residences had already been pre-sold.




According to tower crane filings dated December 3rd and December 10th, the project is planned to utilize two cranes on site. The filings note that the submissions are refilings made in response to an FAA Aeronautical Determination Decision letter. Each crane is expected to reach a maximum height of 688 FT, with work scheduled between October 28th, 2025, and January 15th, 2027. While timelines attached to FAA applications are subject to change and aren’t definitive, the October 28th start date suggests that crane installation may already have occurred on site.


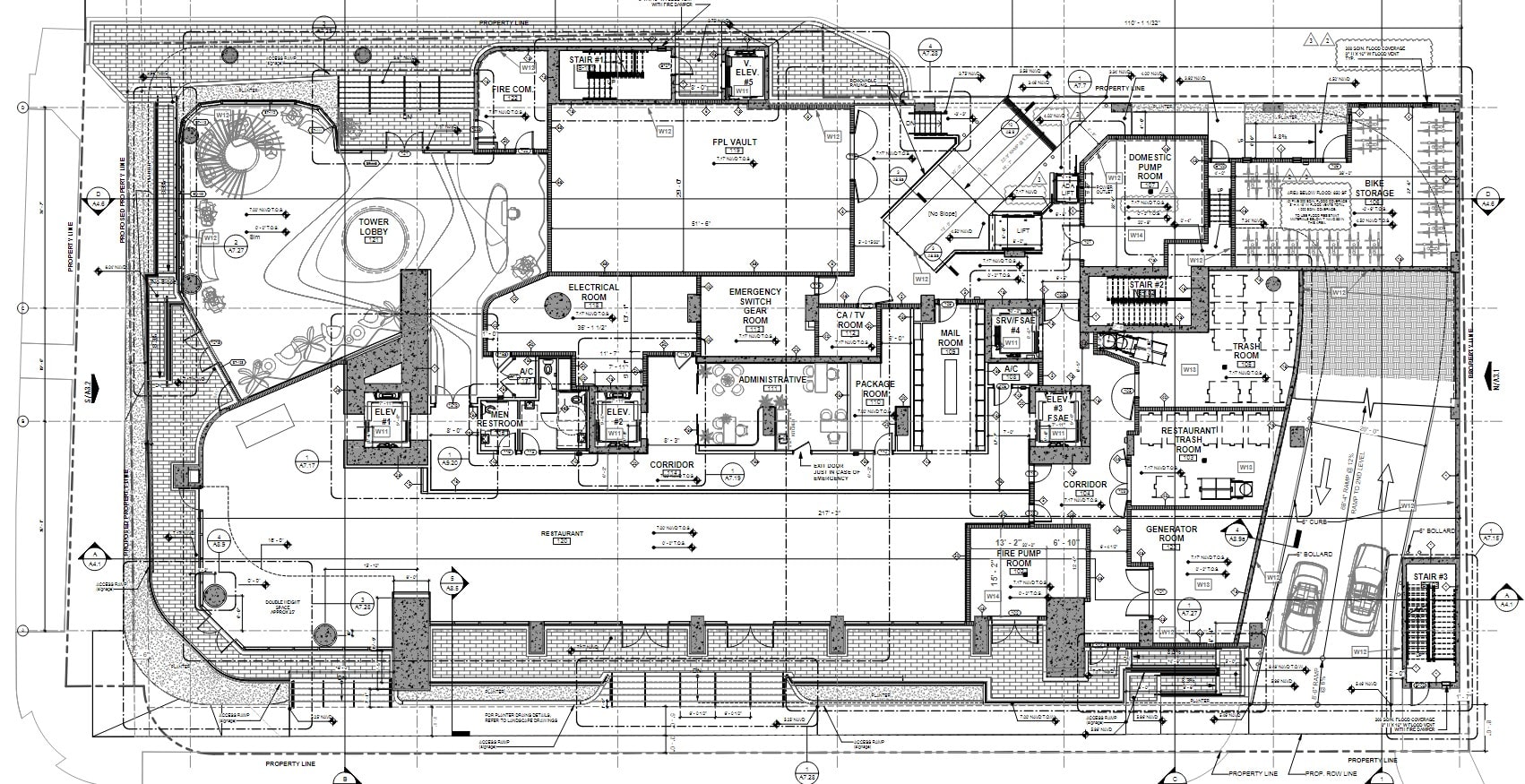
In addition to FAA approvals, the developer (together with general contractor Beauchamp Construction) has submitted a range of construction permits to the City of Fort Lauderdale. These include applications for structural work, utilities, right-of-way permits, foundation work, and other approvals. Importantly, the filings also cover the demolition of the on-site sales center previously built by Related Group, which must be removed to make way for the tower’s construction.
While previous reports about the tower, set to become Fort Lauderdale’s tallest, relied on an outdated Design Review Committee submission from Related Group, Floridian Development has obtained updated documents showing the building will reach 542 FT across 45 floors. In addition to the 192 planned residential units, the project will include 280 parking spaces, 3,205 SF of restaurant space, and extensive amenity programs.


The interior residences are being designed by Pininfarina, while the exterior design is managed by Cohen Freedman Encinosa, serving as the architect of record.