
A new student housing tower is on the horizon for South Miami, as Alta Development prepares to move forward with SOMI Walk, a 16-story project planned near the University of Miami. The Miami-based developer has spent the past year refining the proposal through multiple planning stages and design iterations, with the latest version now submitted to the City of South Miami’s Design Review Board for review.
Located at 5959 SW 71st Street and 7090 SW 59th Place, the 1.01-acre site currently houses a mix of hotel and office space that will be replaced by student housing to meet surging demand in the area. Designed by FormGroup Architects, SOMI Walk would mark one of the tallest additions to South Miami’s core, following the completion of Vox Miami nearby.



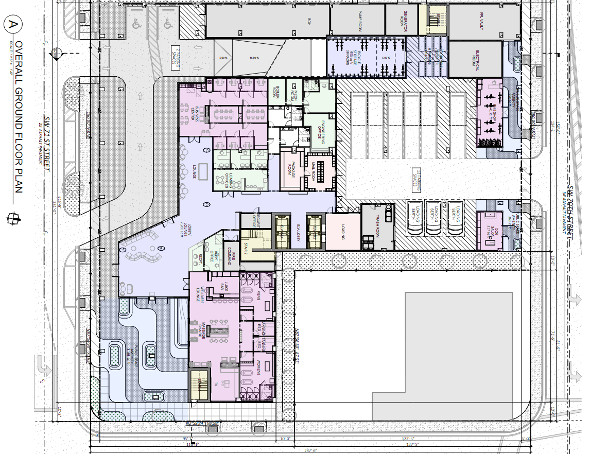
According to plans submitted to the city, the development will include 173 residential units, with the potential for possible EB-5 investment funding. Units will be offered in a range of configurations, from one-, two-, three-, four- and five-bedroom layouts. Planned amenities include a rooftop deck, pools, a fitness center, wellness lounge, business center, terrace space, and more.
The ground floor will include a spacious lobby, a bike shop, and a dog salon, along with a 3,168 SF public plaza for the public. Parking will occupy the first three levels, providing 173 spaces that include standard, accessible, and double-stacked lift options for residents.


According to elevations prepared by FormGroup Architects, the 16-story tower will rise 192 FT at its tallest point. The facade incorporates stucco, brick, aluminum railings, and other modern finishes. Achieving this height, however, required navigating South Miami’s strict zoning regulations, which initially limited development.
Because the site’s existing zoning only permits 8 stories, the developer had to make several adjustments to qualify for an additional height bonus, bringing the total to 16 floors. To achieve this, the project must contribute to open space, affordable and workforce housing, and sustainability initiatives by developing LEED Gold or LEED Platinum-certified buildings. If those standards are not met, the developer is required to make a payment in lieu of the city. Additional bonus floor area is also granted under these regulations.
Prior to submitting plans to the Design Review Board, Alta Development secured approval on March 31st, 2025, for key land use and zoning changes affecting the SOMI Walk property. The updates changed the site on the Future Land Use Map (FLUM) to Transit-Supportive Development (TSD) and assigned it a TSDD zoning district, paving the way for the project’s current 16-story proposal.
According to Alta Development, the team behind the development is planning to begin demolition soon, with groundbreaking in January. Once completed, it will be Alta Developments first project in South Miami.